Carrasco, Alamos 2200

U$S 198,713

$ ~7,930,000 / U$S 3,258/m2

Bedrooms

2

Bathrooms

1

Area

61

Construction Year

2025

Category

Apartment

more than

1 month ago

Views

108

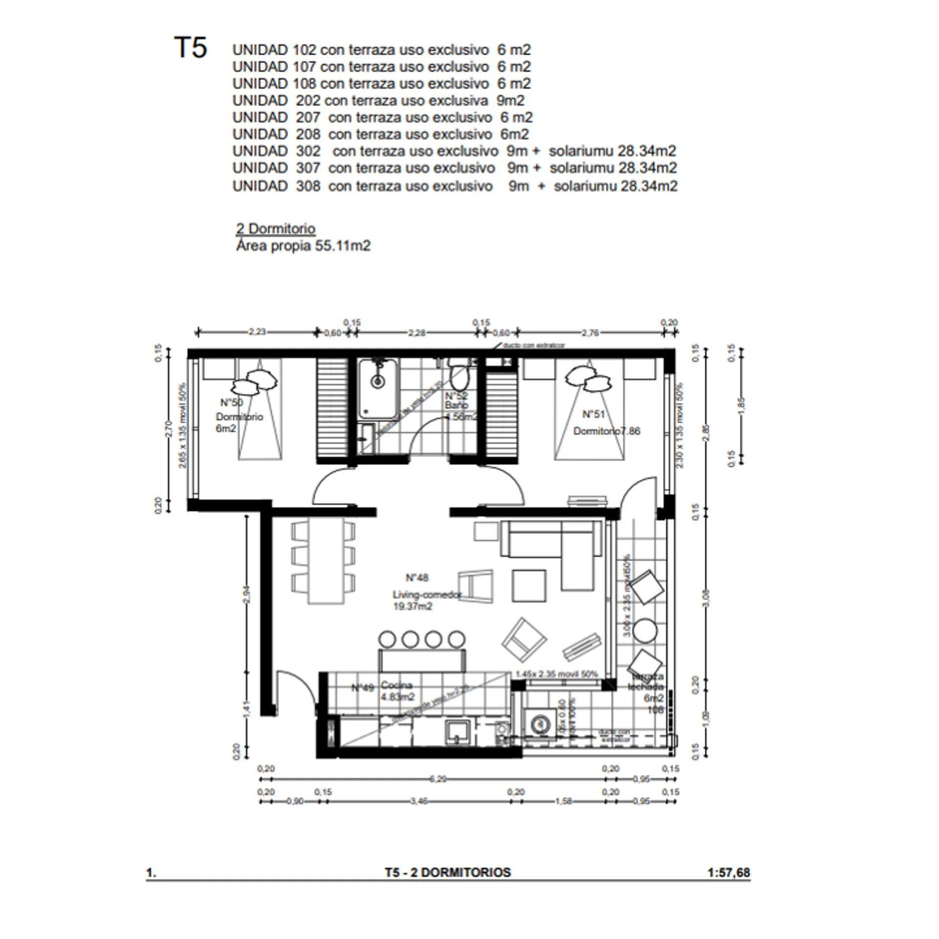
Venta Carrasco 2 Dormtiorios - Ley Promovida

Corredor Responsable: -
Contacto: Norma Bueno

Carrasco Parkside!
Unidad 107.


Nuevo proyecto ubicado en una de las zonas más exclusivas y deseadas de la ciudad.
A metros del Estadio Charrúa y metros de zona de servicios y shoppings de Carrasco.


Puntos destacados del proyecto
- Excelente ubicación y conectividad, a metros de Portones Shopping.
- Terminaciones de gran calidad.
- Terrazas o patios propios en cada unidad.
- Cocheras opcionales.
- Mínimos costos de gastos comunes.
- Proyecto promovido por MVOTMA ley 18.795.
- Video vigilancia.
- Vistas despejadas en todas las unidades.


El edificio cuenta con 27 unidades de varias Tipologías, apartamentos de 1, 2 y 3 dormitorios, todos diseñados con acabados de alta gama y atención a cada detalle.


Financiación: Flexibilidad en planes de pago y opciones de financiación directa con la desarrolladora.

BENEFICIOS FISCALES PARA EL COMPRADOR
Ley 18.795 de inversión privada en vivienda de interés social:
“Ley de Vivienda Promovida”
Exoneración de Impuestos:
- Exoneración del IVA en el precio de compra.
- Exoneración de ITP por la primera enajenación de la vivienda.
o Esto a su vez reduce los costos de escrituración.
- Exoneración del Impuesto a la Renta (IRPF/IRAE) de los alquileres por 10 años.
- Exoneración del Impuesto al Patrimonio por 10 años.


Plusvalía: Una inversión segura en una zona con alta demanda y constante revalorización, asegurando una excelente rentabilidad a futuro.

El edificio cuenta con:
Cocheras abiertas: U$S 21000
Cocheras techadas U$S 25200
Cocheras grandes U$S 27825
Las cocheras no están incluidas en el precio de venta. Se comercializan aparte.

Gastos de conexión 4%
Fecha estimada de entrega febrero 2027


Compartimos con todos los colegas

Cada Oficina es de propiedad, gestión y desarrollo independiente
La presente publicación describe las características esenciales del inmueble, debiéndose consultar al responsable de la operación por la eventual actualización de las medidas, descripciones arquitectónicas y funcionales, servicios, impuestos, precios y demás información, cuyos valores son aproximados.

Property details

ID

Category

Type

Area

Built Area

Rooms

1256421

Apartment

Sale

61

61

3

Bathrooms

Bedrooms

Construction Year

Code

Updated

1

2

2025

J35055

2025-09-19

Location

198.7к U$S

Location

Montevideo

Address

Carrasco, Alamos 2200

Additional Actions

Norma Bueno Re/Max
598 99 526 582
Similar object
Loading...
Earn money by referring colleagues!

Invite other real estate agents and earn 10% commission for every promotion they make.