Carrasco Norte, Dr. Celedonio Nin Y Silva 2297, Montevideo Departamento De Montevideo, Uruguay

U$S 270,600

$ ~10,800,000 / + U$S 9,500 common expenses / U$S 4,436/m2

Bedrooms

2

Bathrooms

1

Garage

1

Area

61

Category

Apartment

more than

3 months ago

Views

273

Venta Carrasco -2 Dormitorios-muy Soleado-parrillero-amplio-garaje Incluido

DESTACAMOS
Orientación Norte • Parrillero • Portería Virtual 24hs. • Amplios ambientes • Amenities

LA ZONA

El equilibrio perfecto entre la tranquilidad de un barrio residencial y la comodidad de estar conectado con la ciudad. Rodeado de naturaleza y colegios a muy pocas cuadras como Stella Maris y Scuola Italiana, es un lugar pensado para familias que buscan calidad de vida sin resignar accesibilidad. Enfrente se encuentra un gran parque verde, ideal para ir con tus hijos o con tu perro.

En pocos minutos accedés al supermercado Devoto, y más cerca, tenes un minimercado.

Con excelente conectividad hacia Av. Italia y los principales puntos de Montevideo, la zona se convierte en un entorno ideal para vivir con confort, seguridad y un estilo de vida único.


EL COMPLEJO GT
Se trata de un conjunto mixto de casas + apartamentos con amenities y Seguridad 24hs.
Casas: 49 casas de dos dormitorios en dúplex, 2 casas de tres dormitorios en triplex.
Apartamentos: 2 bloques bajos en los laterales del frente. Uno de los edificios cuenta con 9 apartamentos y el otro con 14 apartamentos, todos de dos dormitorios.
Acceso vehicular automático mediante lector de matrícula.
Portería Física 8 horas + Portería Virtual Materson 24hs
Cuenta con excelentes amenities: Piscina • Gimnasio • Acceso controlado 24 hs • Barbacoa con estufa a leña • parrillero • Garajes y cocheras

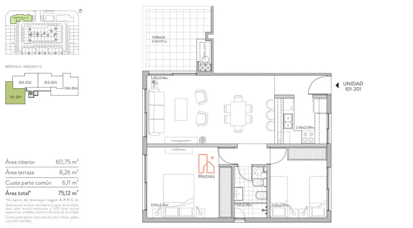
AMBIENTES
Living comedor • 2 dormitorios • Cocina semi-integrada • Baño • Terraza • Parrillero exclusivo • Garage • Lavadero

EL APARTAMENTO
Cuenta con 61 m² interiores + 8 m² de terraza, ubicado en el 2º piso con orientación noroeste, lo que asegura sol durante toda la tarde

Dispone de un amplio living comedor que cuenta con acceso a un gran terraza con PARRILLERO de uso exclusivo generando un espacio muy luminoso y disfrutable.

La cocina semi definida se integra al living comedor, con un diseño contemporáneo, placares bajo y sobre mesada y buenas terminaciones.

La unidad ofrece 2 dormitorios con placares, siendo el principal de gran tamaño, además de un baño completo con equipamiento y acabados de alto nivel.

Previsión para AA en living y dormitorios.
Previsión Lavavajillas en unidades 01 y 04.

Cochera YA incluida en el precio publicado.


PRECIOS Y GASTOS
Gastos comunes estimados Apartamentos: $ 9.500
Comisión inmobiliaria: 3%+iva
Conexiones: 4%

¡Te deseamos suerte en tu búsqueda, y estamos para ayudarte tanto con esta propiedad o también para ayudarte buscando otras opciones en todo el mercado! No dudes en contactarnos.

Inmobiliaria Metros
Consulta nuestra web y redes sociales para encontrar otras oportunidades.
Instagram: metros.inmobiliaria

Property details

ID

Category

Type

Area

Built Area

Rooms

1242390

Apartment

Sale

61

61

3

Bathrooms

Bedrooms

Garage

Common expenses

Code

Updated

1

2

1

U$S9500

LGFDCAC

2025-09-18

Location

270.6к U$S

Location

Montevideo

Address

Carrasco Norte, Dr. Celedonio Nin Y Silva 2297, Montevideo Departamento De Montevideo, Uruguay

Amenities

Barbecue Area

Terrace

Elevator

Laundry Room

Swimming Pool

Common Area

A/C Provision

Air Conditioning

Garden

Additional Actions

Metros
+59894622258
Similar object
Loading...
Earn money by referring colleagues!

Invite other real estate agents and earn 10% commission for every promotion they make.