Carrasco, Alamos 2200

U$S 158,970

$ ~6,410,000 / U$S 2,650/m2

Bedrooms

1

Bathrooms

1

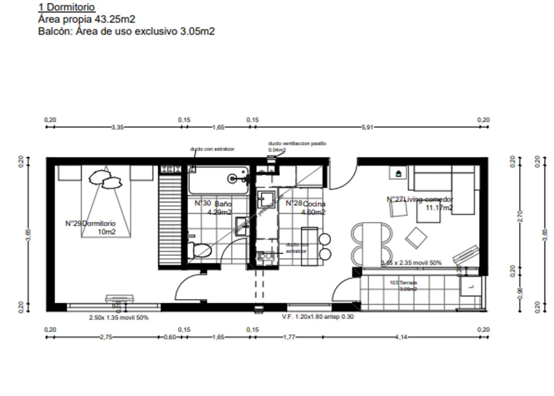
Area

60

Construction Year

2026

Category

Apartment

more than

1 week ago

Views

23

Venta Carrasco Apartamento 2 Dormitorios Ley Vis

Corredor Responsable: -
Contacto: Norma Bueno
Venta Carrasco Parkside!
UNIDAD 108
VENTA CON LEY PROMOVIDA DE VIVIENDA


Nuevo proyecto ubicado en una de las zonas más exclusivas y deseadas de la ciudad.
A metros del Estadio Charrúa y metros de zona de servicios y shoppings de Carrasco.


Puntos destacados del proyecto
- Excelente ubicación y conectividad, a metros de Portones Shopping.
- Terminaciones de gran calidad.
- Terrazas o patios propios en cada unidad.
- Cocheras opcionales.
- Mínimos costos de gastos comunes.
- Proyecto promovido por MVOTMA ley 18.795.
- Video vigilancia.
- Vistas despejadas en todas las unidades.


El edificio cuenta con 27 unidades de varias Tipologías, apartamentos de 1, 2 y 3 dormitorios, todos diseñados con acabados de alta gama y atención a cada detalle.


Financiación: Flexibilidad en planes de pago y opciones de financiación directa con la desarrolladora.

BENEFICIOS FISCALES PARA EL COMPRADOR
Ley 18.795 de inversión privada en vivienda de interés social:
“Ley de Vivienda Promovida”
Exoneración de Impuestos:
- Exoneración del IVA en el precio de compra.
- Exoneración de ITP por la primera enajenación de la vivienda.
o Esto a su vez reduce los costos de escrituración.
- Exoneración del Impuesto a la Renta (IRPF/IRAE) de los alquileres por 10 años.
- Exoneración del Impuesto al Patrimonio por 10 años.


Plusvalía: Una inversión segura en una zona con alta demanda y constante revalorización, asegurando una excelente rentabilidad a futuro.

El edificio cuenta con:
Cocheras abiertas: U$S 21000
Cocheras techadas U$S 25200
Cocheras grandes U$S 27825
Gastos de conexión 4%


No pierdas la oportunidad de ser parte de este exclusivo proyecto.
Carrasco Parkside te ofrece no solo una vivienda, sino un estilo de vida privilegiado.
Fecha estimada de entrega febrero 2027
Contáctanos hoy mismo para más información de otras unidades disponibles y asegúrate de reservar tu lugar en este inigualable desarrollo. ¡Tu futuro hogar te espera!

Compartimos con todos los colegas


Cada Oficina es de propiedad, gestión y desarrollo independiente
La presente publicación describe las características esenciales del inmueble, debiéndose consultar al responsable de la operación por la eventual actualización de las medidas, descripciones arquitectónicas y funcionales, servicios, impuestos, precios y demás información, cuyos valores son aproximados.

Property details

ID

Category

Type

Area

Rooms

1470217

Apartment

Sale

60

2

Bathrooms

Bedrooms

Construction Year

Code

Updated

1

1

2026

PA59A5

2026-04-09

Location

159.0к U$S

Location

Montevideo

Address

Carrasco, Alamos 2200

Amenities

Barbecue Area

Additional Actions

Norma Bueno Re/Max
099...582
598...582
Similar object
Loading...
Earn money by referring colleagues!

Invite other real estate agents and earn 10% commission for every promotion they make.