Parque Batlle, Avenida Italia 3200

U$S 144,990

$ ~5,790,000 / U$S 2,457/m2

Bedrooms

1

Bathrooms

1

Area

59

Construction Year

2025

Category

Apartment

more than

2 months ago

Views

275

Venta Apto Parque Batlle 1 Dorm - Estrena Oct 2025

Corredor Responsable: -
Contacto: María Noel Tilve Rapela
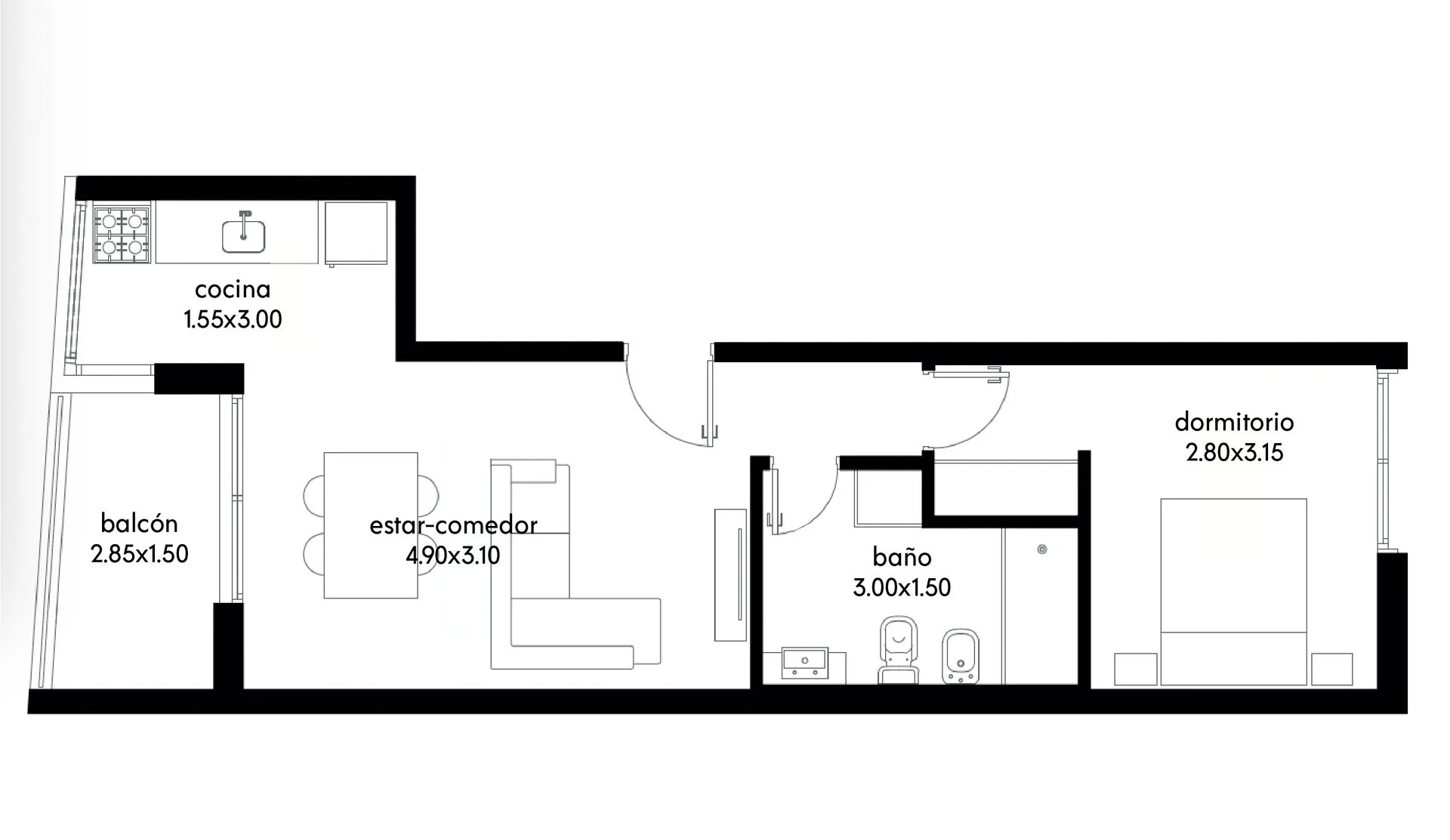
Apartamento a estrenar PULSE Av. Italia unidad 101 (1 dormitorio).

Amparado por la ley de vivienda promovida + beneficios impositivos.

CARACTERÍSTICAS PRINCIPALES:

- Frente con orientación norte.
- Cocina semi definida
- Conexión a lavarropas
- Preinstalación para equipos de aire acondicionado en living y dormitorio.
- Aberturas con doble vidrio hermético (DVH)
- Cortinas de enrollar de aluminio en el dormitorio y placard.
- Muebles de cocina con bajo mesada y aéreos.

AMENITIES
- SUM / Barbacoa de uso común en el piso 11.
-Sistema de recepción automática de paquetes y compras web.
- Video portero IP.
- Videovigilancia.

Gastos de ocupación: 4%
Cocheras disponibles a partir de usd 18.000

Gastos comunes aproximados $5.000

Consulte por otras unidades de 1 y 2 dormitorios disponibles.

Forma de pago:
10% de reserva.
40% compromiso compraventa.
Saldo restante en cuotas hasta la ocupación.

Fecha de ocupación: octubre de 2025.
Cada Oficina es de propiedad, gestión y desarrollo independiente
La presente publicación describe las características esenciales del inmueble, debiéndose consultar al responsable de la operación por la eventual actualización de las medidas, descripciones arquitectónicas y funcionales, servicios, impuestos, precios y demás información, cuyos valores son aproximados.

Property details

ID

Category

Type

Area

Built Area

Rooms

1256165

Apartment

Sale

59

59

2

Bathrooms

Bedrooms

Construction Year

Code

Updated

1

1

2025

GE282C

2025-09-22

Location

145.0к U$S

Location

Montevideo

Address

Parque Batlle, Avenida Italia 3200

Additional Actions

RE/MAX Focus
Similar object
Loading...
Earn money by referring colleagues!

Invite other real estate agents and earn 10% commission for every promotion they make.