La Blanqueada, Escocia 2200

U$S 89,900

$ ~3,470,000 / U$S 1,913/m2

Bedrooms

1

Bathrooms

1

Area

47

Construction Year

2025

Category

Apartment

more than

4 months ago

Views

363

Venta Apto Monoambiente Con Patio Estrena Feb26

Corredor Responsable: -
Contacto: María Noel Tilve Rapela
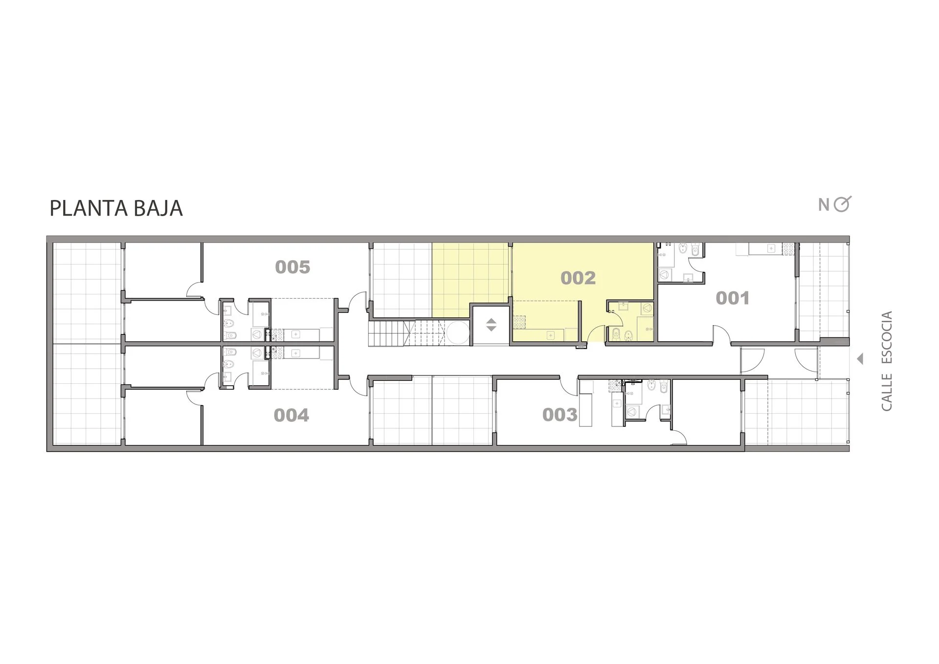
Unidad 002 – Monoambiente con patio en Edificio Penino - estrena febrero 2026
INVERSORES - Renta neta estimada: 7%

Monoambiente de 35,90 m² interiores más patio exclusivo de 11,50 m², con orientación noreste.

Edificio con 15 apartamentos en total (planta baja y 2 niveles). La construcción es tradicional, con muros exteriores y divisorios entre unidades en bloques de hormigón celular HCCA, lo que garantiza un excelente aislamiento térmico y acústico.

El apartamento cuenta con:

- Abertura de aluminio negro con doble vidrio hermético (DVH).
- Cortina de enrollar de aluminio con poliuretano inyectado.
- Pisos vinílicos en área estar/dormitorio y porcelanato en baño.
- Previsión para aire acondicionado.

El edificio ofrece ascensor, sistema de cámaras de seguridad en accesos y áreas comunes, conexiones para TV cable e internet y portero eléctrico.

Ubicado en una zona residencial consolidada, a 2 cuadras de Bv. Batlle y Ordóñez y a 3 cuadras de Av. Italia, con gran conectividad y servicios cercanos.

Gastos de ocupación: 4%

Honorarios de inmobiliaria: 3% + iva
Otras unidades disponibles de 2 dormitorios, 1 dormitorio y monoambientes.
Compartimos con todos los colegas.
Cada Oficina es de propiedad, gestión y desarrollo independiente
La presente publicación describe las características esenciales del inmueble, debiéndose consultar al responsable de la operación por la eventual actualización de las medidas, descripciones arquitectónicas y funcionales, servicios, impuestos, precios y demás información, cuyos valores son aproximados.

Property details

ID

Category

Type

Area

Built Area

Rooms

1271621

Apartment

Sale

47

47

2

Bathrooms

Bedrooms

Construction Year

Code

Updated

1

1

2025

IC3BC3

2025-10-08

Location

89.9к U$S

Location

Montevideo

Address

La Blanqueada, Escocia 2200

Additional Actions

RE/MAX Focus
Similar object
Loading...
Earn money by referring colleagues!

Invite other real estate agents and earn 10% commission for every promotion they make.