Prado, Sitio Grande 1100

U$S 120,540

U$S 2,870/m2

Bedrooms

1

Bathrooms

1

Area

42

Construction Year

2027

Category

Apartment

more than

2 months ago

Views

312

Venta Apto 1 Dormitorio Terraza Prado En Pozo

Corredor Responsable: -
Contacto: Viviana Romanos
Se vende apartamento de 1 dormitorios con terraza en NOSTRUM GARDEN, ubicado en Sitio Grande entre Cuaro y Buricayupi.

Estrena en diciembre de 2027.

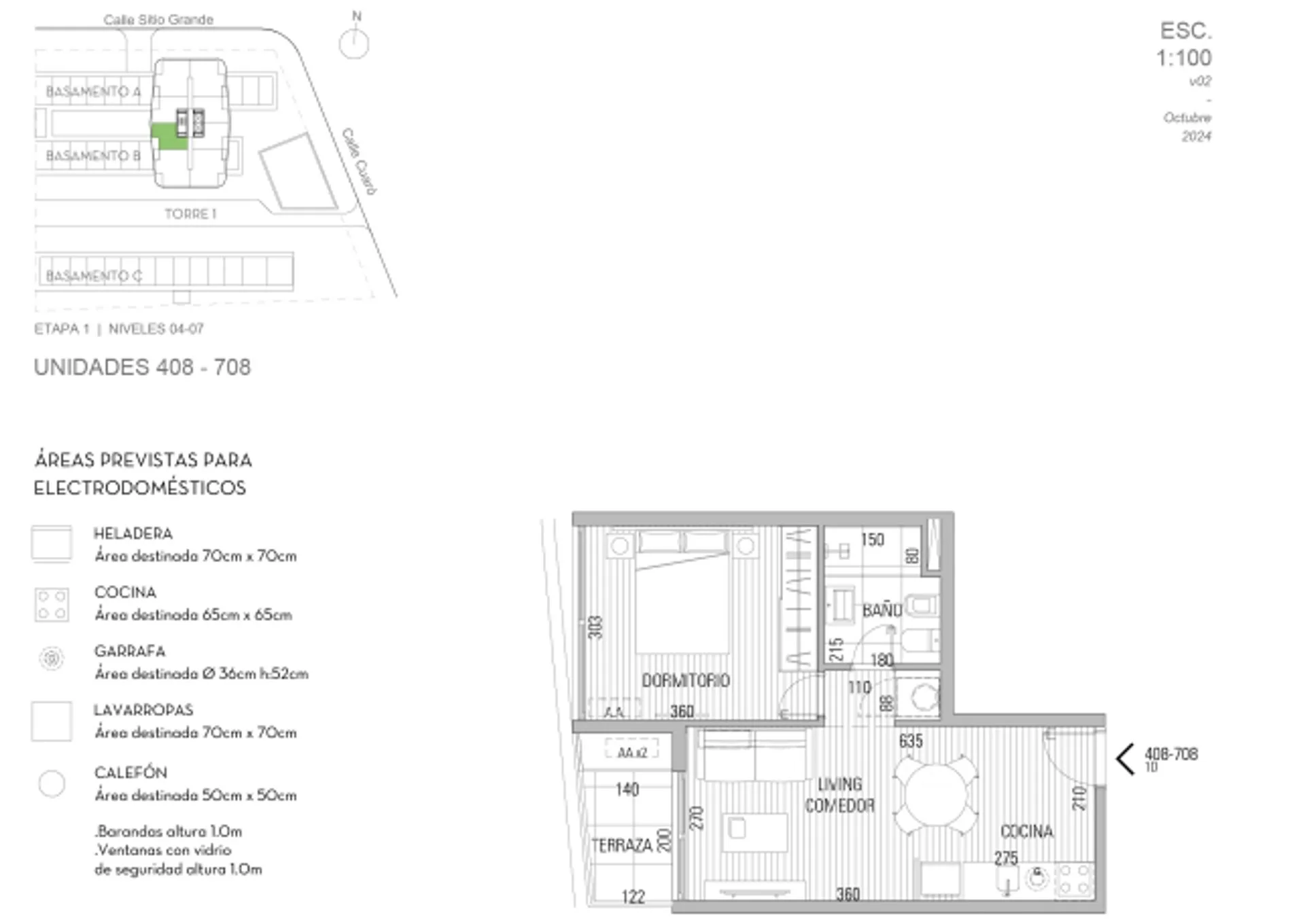
Apartamento unidad 408 en el cuarto piso, de 1 dormitorio con orientación oeste. Pensado para el disfrute y el aprovechamiento de los espacios, cocina integrada con muebles aéreos y bajo mesada. Baño con terminaciones contemporáneas y materiales de primera calidad. Terraza al frente con salida desde el living y previsión de aire acondicionado en living y dormitorio. Aberturas de aluminio, terminación color negro con cortina de enrollar integrada, pavimento vinílico de alta resistencia en listones símil madera.

El edificio contará con variedad de amenities como ser barbacoa con parrillero, terraza exterior, recorrido exterior con diseño de paisaje e iluminación decorativa, huerta y juegos para niños. También contará con lavandería y gimnasio con equipamiento móvil.

El proyecto está a cargo del estudio Gómez Platero Arquitectos, define un nuevo concepto residencial en el corazón de la ciudad, potenciando su integración con el paisaje de la zona y desarrollando un proyecto a gran escala.

Con los beneficios de la Ley de vivienda promovida:
- Exoneración de ITP
- Exoneración del IVA
- Exoneración del Impuesto al Patrimonio por 10 años
- Exoneración del Impuesto a la Renta de los alquileres por 10 años.

Consultar por otras unidades monoambientes, 1 o 2 dormitorios.

Los precios no incluyen el 4% de conexiónes.



Cada Oficina es de propiedad, gestión y desarrollo independiente
La presente publicación describe las características esenciales del inmueble, debiéndose consultar al responsable de la operación por la eventual actualización de las medidas, descripciones arquitectónicas y funcionales, servicios, impuestos, precios y demás información, cuyos valores son aproximados.

Property details

ID

Category

Type

Area

Built Area

Rooms

1267786

Apartment

Sale

42

42

2

Bathrooms

Bedrooms

Construction Year

Code

Updated

1

1

2027

D1231B

2025-10-06

Location

120.5к U$S

Location

Montevideo

Address

Prado, Sitio Grande 1100

Additional Actions

RE/MAX Focus
Similar object
Loading...
Earn money by referring colleagues!

Invite other real estate agents and earn 10% commission for every promotion they make.