Cordón, Calle Joaquin De Salterain 1400

U$S 168,260

U$S 2,305/m2

Bedrooms

2

Bathrooms

1

Area

73

Construction Year

2027

Category

Apartment

more than

2 months ago

Views

336

Venta Apto 2 Dorm Cordon Pozo Estrena En Jun 2028

Corredor Responsable: -
Contacto: Leticia Ciuti Morena
VENTA DE APARTAMENTO DE 2 DORMITORIOS EN CORDON ESTRENA EN JUNIO 2028

Se trata de un edificio de apartamentos a desarrollarse en Montevideo en el barrio Cordón, se ubica en la calle Joaquín de Salterain 1480 entre calle Ana Monterroso de Lavalleja y Av. General Rivera.

Se proyecta un edificio de 69 unidades y 36 garajes. En piso 11 se proyecta una barbacoa y gimnasio de uso común.

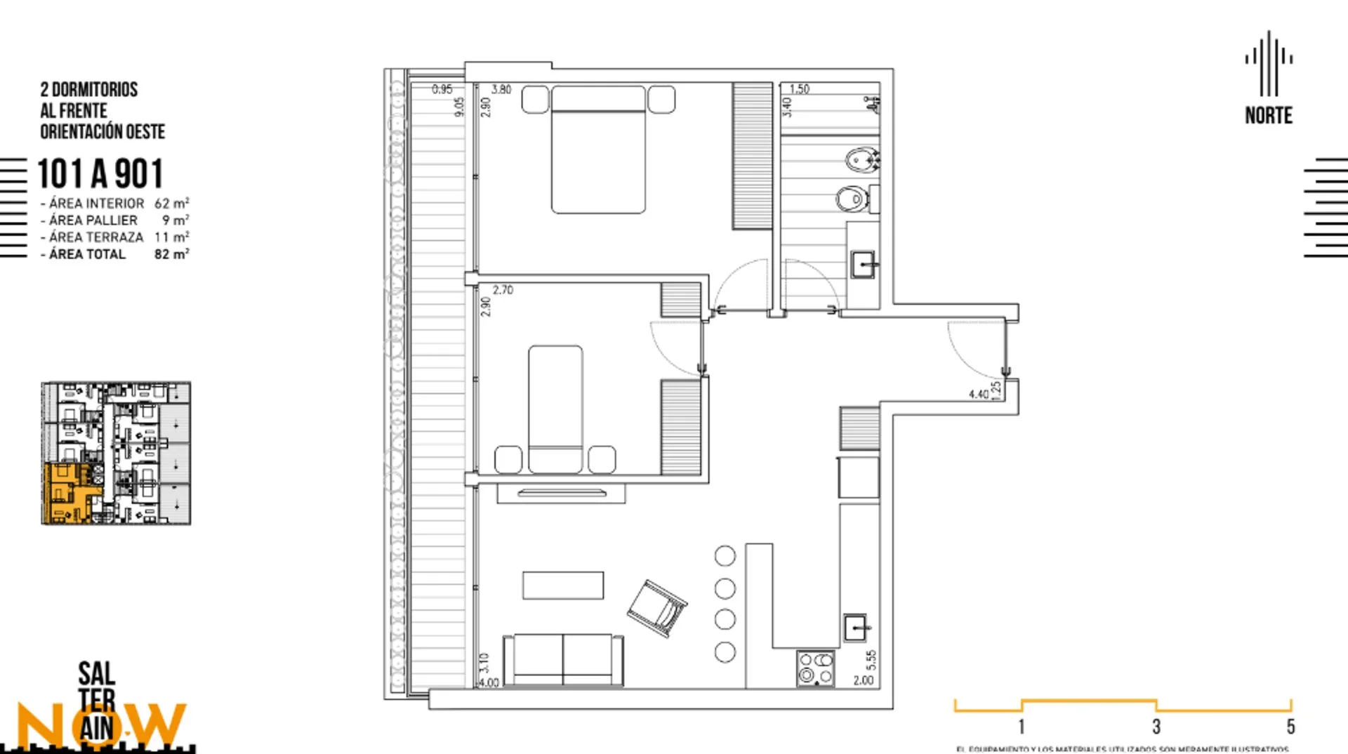
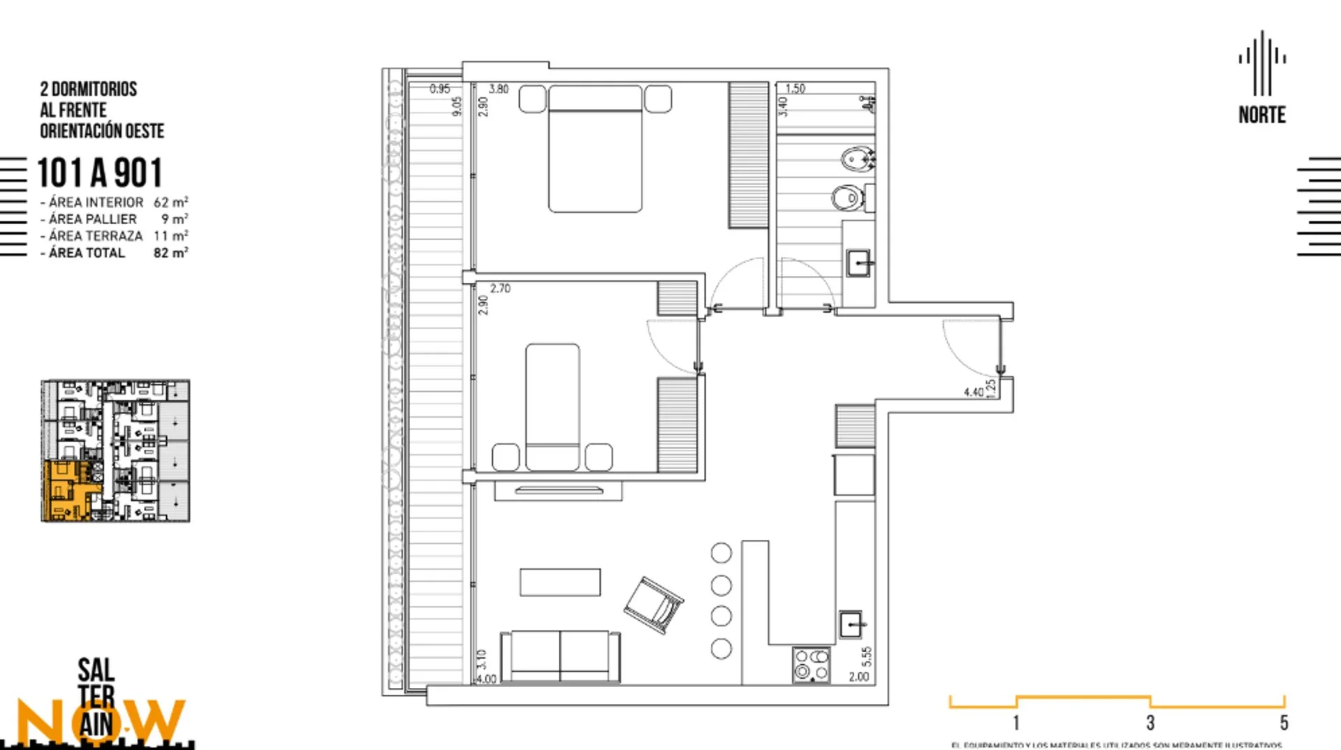
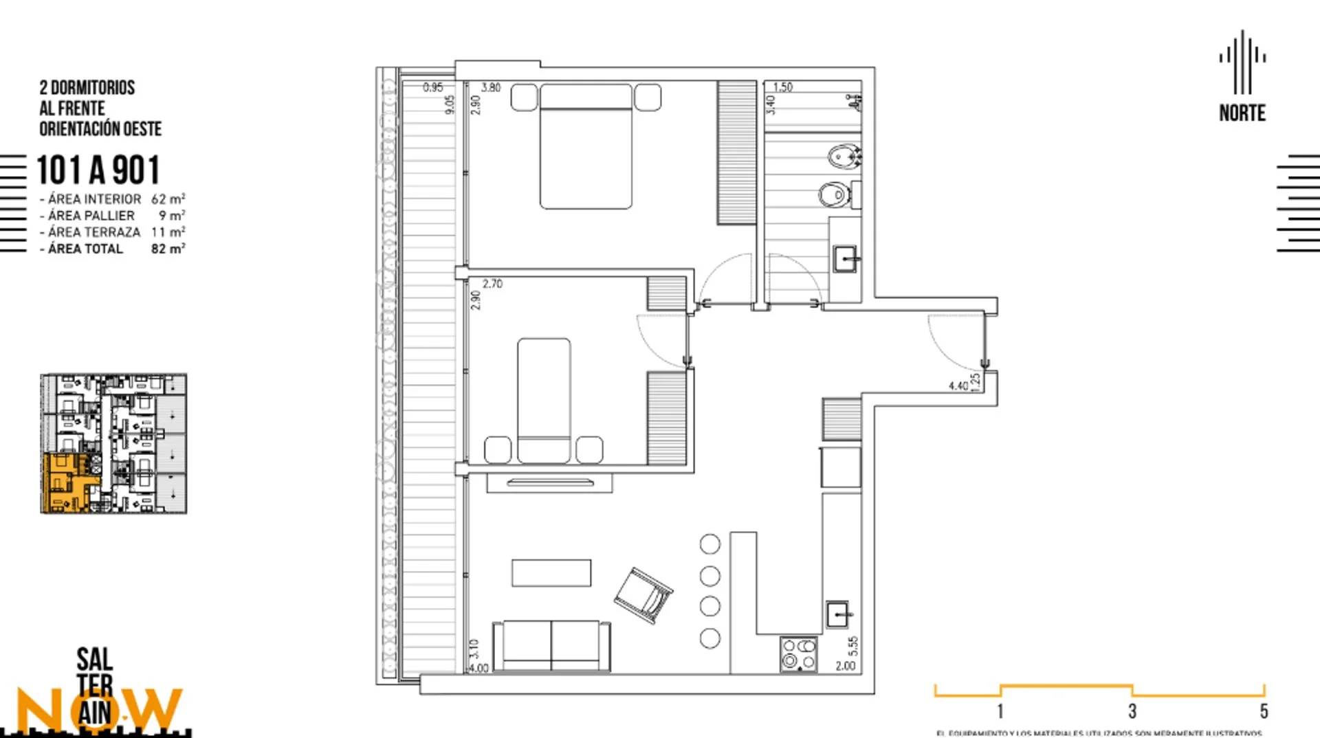
La unidad cuenta con 62 m² edificados y 11 m² de terraza. Al ingresar nos encontramos con el primer dormitorio, a mano derecha nos encontramos con el baño y el segundo dormitorio, ambos dormitorios cuanta con salida a la terraza. A la izquierda se encuentra el living comedor con la cocina, también con salida a la terraza.

Amparado a la Ley de vivienda promovida N° 18.795 y Ley N° 16.760 que permite escriturar.

Consultar por otras tipologías

Modo de pago:
Contado: 10% reserva - 80% compromiso - 10% ocupación
Durante obra: 10% reserva - 20 % compromiso - 60% durante obra - 10% ocupación
Con banco: 10% reserva/compromiso - 10% durante obra - 80% ocupación



Cada Oficina es de propiedad, gestión y desarrollo independiente
La presente publicación describe las características esenciales del inmueble, debiéndose consultar al responsable de la operación por la eventual actualización de las medidas, descripciones arquitectónicas y funcionales, servicios, impuestos, precios y demás información, cuyos valores son aproximados.

Property details

ID

Category

Type

Area

Rooms

1311999

Apartment

Sale

73

3

Bathrooms

Bedrooms

Construction Year

Code

Updated

1

2

2027

Z423C9

2025-11-15

Location

168.3к U$S

Location

Montevideo

Address

Cordón, Calle Joaquin De Salterain 1400

Additional Actions

RE/MAX
099001901
Similar object
Loading...
Earn money by referring colleagues!

Invite other real estate agents and earn 10% commission for every promotion they make.