Malvín Norte, Iguá

U$S 72,000

Bedrooms

3

Garage

1

Category

Apartment

more than

2 months ago

Views

244

Venta Apartamento 3 Dormitorios Seguridad 24hs Malvin Norte

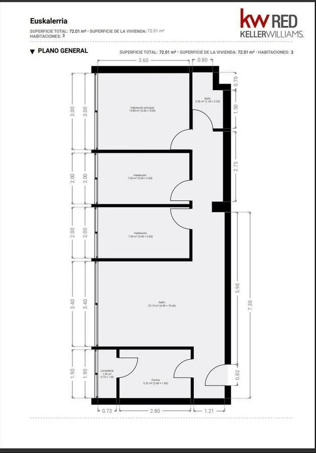
CASASWEB(225414) RESERVADO!!Excelente Apartamento en Complejo Euskal Erria 70, Malvín Norte¡Oportunidad en Malvín Norte! Este apartamento de 62 m² se encuentra en el complejo Euskal Erria 70, con acceso principal por la calle Igua y seguridad 24 horas para tu tranquilidad. Características del Apartamento:Superficie: 62 m² en muy buen estado de conservaciónDistribución: 3 dormitorios amplios con placares y grandes ventanalesCocina Definida: Placares bajo y sobre mesada y amplio espacio de guardadoBaño Completo: Amplio y cómodoLiving Comedor: Espacioso y luminoso, con excelente distribución y placares adicionalesTerraza Lavadero: Práctica y funcional para tu comodidadComodidades del Complejo:Complejo cerrado perimetralmente con seguridad 24 hrs en las entradasEstacionamiento dentro del complejoAmplias áreas verdes y juegos infantilesComercios de conveniencia dentro del complejoEste apartamento combina seguridad, comodidad y una ubicación estratégica en una zona con acceso a todos los servicios. ¡No dejes pasar esta oportunidad y coordina tu visita hoy mismo!Honorarios inmobiliarios 3% + IVA. Ver mas detalles en casasweb.com?225414

Property details

ID

Category

Type

Rooms

1329517

Apartment

Sale

4

Bedrooms

Garage

Code

Updated

3

1

K3CB7C

2025-11-20

Location

72к U$S

Location

Montevideo

Address

Malvín Norte, Iguá

Additional Actions

KW Red Carrasco
59826010107
+59899185355
Similar object
Loading...
Earn money by referring colleagues!

Invite other real estate agents and earn 10% commission for every promotion they make.