La Blanqueada, Escocia 2200

U$S 138,000

$ ~5,320,000 / U$S 2,262/m2

Bedrooms

2

Bathrooms

1

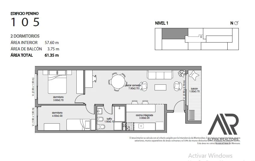
Area

61

Construction Year

2025

Category

Apartment

more than

4 months ago

Views

471

Venta Apartamento 2 Dormitorios La Blanqueada Ley De Vivienda Promovida

Proyecto Penino – Calle Escocia, Montevideo (La Blanqueada)

Moderno edificio de solo tres niveles con ascensor, ubicado a metros de Av. Italia y José Batlle y Ordóñez. Construido íntegramente con bloques de hormigón celular HCCA, que garantizan una excelente aislación térmica y acústica, confort, privacidad y eficiencia energética.

Unidades con patio o balcón, aberturas de aluminio negro con DVH, cortinas de enrollar con poliuretano inyectado, pisos vinílicos en estar y dormitorios, porcelanato en baño. Cocina equipada con muebles aéreos y bajo mesada, pileta de acero inoxidable y campana. Previsión para aire acondicionado en todos los ambientes.

Sistema de seguridad en accesos y áreas comunes. Conexiones listas para TV, cable e internet. Portero eléctrico, sensores de humo y detección de incendio.

Amparado por la Ley 18.795 de Vivienda Promovida:
- Exoneración de ITP (2%)
- Exoneración del impuesto al patrimonio por 10 años
- Exoneración del IRPF o IRAE por 10 años

Unidades disponibles:
Monoambientes desde USD 101.000.-
1 Dormitorio desde USD 115.000.-
2 Dormitorios desde USD 138.000.-

Formas de pago flexibles, mediante financiación propia o bancaria.

Gastos de Ocupación: 4%
Hon. Inm. 3% + IVA

Entrega: Febrero 2026
Bajos gastos comunes – Alta proyección de valorización

Consultanos por las diferentes formas de pago y disponibilidad.

Ag. Inm. Pía Tolve
Cel. 098050847
Alpha Realtors Inmobiliaria


Property details

ID

Category

Type

Area

Built Area

Rooms

1271573

Apartment

Sale

61

58

3

Bathrooms

Bedrooms

Construction Year

Code

Updated

1

2

2025

PDD26C

2025-10-08

Location

138к U$S

Location

Montevideo

Address

La Blanqueada, Escocia 2200

Additional Actions

ALPHA REALTORS
59899170152
+59893330777
Similar object
Loading...
Earn money by referring colleagues!

Invite other real estate agents and earn 10% commission for every promotion they make.