Buceo, Av.gral Rivera 4200

U$S 276,000

U$S 4,119/m2

Bedrooms

2

Bathrooms

2

Area

67

Construction Year

2024

Category

Apartment

more than

2 months ago

Views

256

Venta Apartamento De 2 Dormitorios En More Buceo

Corredor Responsable: -
Contacto: Viviana Romanos
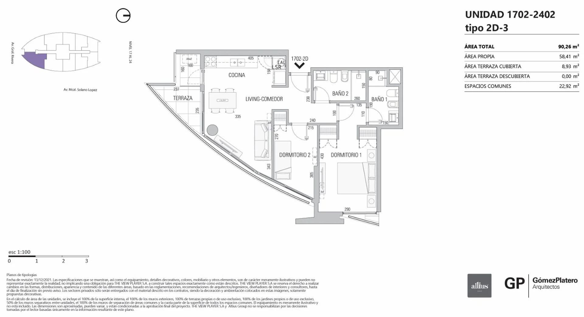
Se vende apartamento en More Buceo, ubicado en la esquina de las Avenidas Rivera y Solano López.

Unidad 2402, al frente con orientación Este. Puerta de acceso al apartamento con cerradura digital. Living comedor con gran fachada vidriada y salida a terraza con vista panorámica. Cocina integrada con muebles tipo alacena, aéreos y bajo mesada, equipada con anafe, horno y campana extractora. Terraza de servicio. 2 dormitorios, el principal en suite, ambos con placares. Segundo baño completo. Pisos ingenieriles con terminación vinílica de alto tránsito símil madera. Aberturas de aluminio con Doble Vidriado Hermético (DVH), y control solar. Aire Acondicionado inverter en living y dormitorio.

Amenities del edificio: Piscina climatizada interior y exterior. Solarium. Sauna húmedo. Sala de masajes y de belleza. Gimnasio y vestuarios. Juegos exteriores para niños. Pet garden y spa para mascotas. Terrazas exteriores con excepcionales vistas panorámicas del entorno y la ciudad. Sky-Bar con cocina gourmet. Barbacoas. Sala de Juegos. Microcine. Business Center y Cowork.

La torre se desarrolla en planta baja con locales comerciales, 25 pisos de apartamentos y el último nivel destinado a las áreas comunes con excepcionales vistas 360 de la ciudad.

Garages disponibles desde USD 29.000
Los precios no incluyen conexiones del 5%.
Cada Oficina es de propiedad, gestión y desarrollo independiente
La presente publicación describe las características esenciales del inmueble, debiéndose consultar al responsable de la operación por la eventual actualización de las medidas, descripciones arquitectónicas y funcionales, servicios, impuestos, precios y demás información, cuyos valores son aproximados.

Property details

ID

Category

Type

Area

Rooms

1311577

Apartment

Sale

67

3

Bathrooms

Bedrooms

Construction Year

Code

Updated

2

2

2024

FF6557

2025-11-28

Location

276к U$S

Location

Montevideo

Address

Buceo, Av.gral Rivera 4200

Additional Actions

RE/MAX
099001901
Similar object
Loading...
Earn money by referring colleagues!

Invite other real estate agents and earn 10% commission for every promotion they make.