5
2
2
500
1960
Home
5 months ago
334
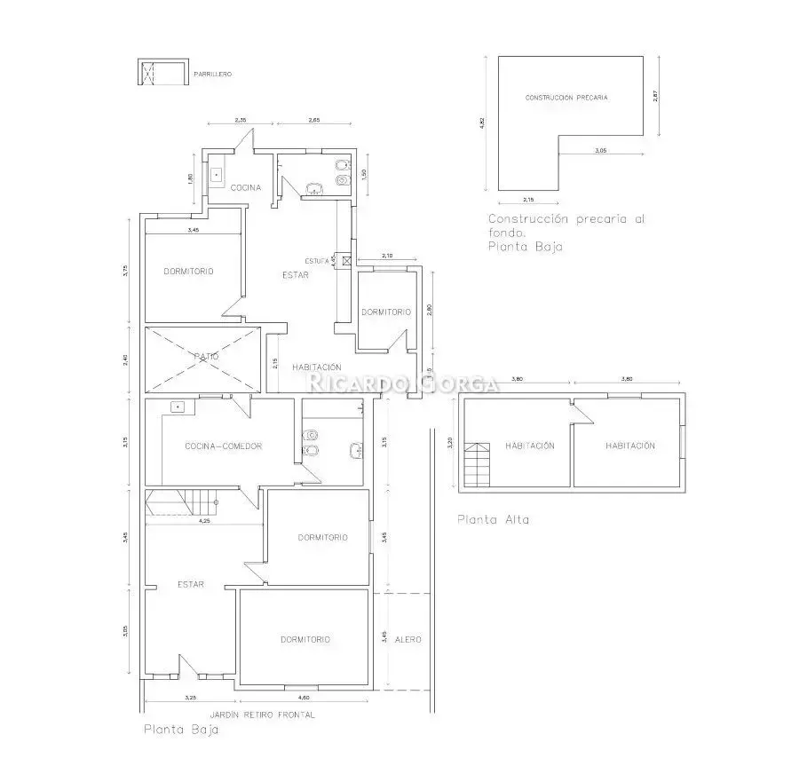
Padrón con 2 unidades en Venta en Prado, Montevideo.
AMBIENTES
CASA 1: Estar, dos dormitorios, cocina comedor, baño y dos habitaciones en planta alta
CASA 2: Estar, dos dormitorios, cocina y baño
Al fondo edificación liviana
DESTACADOS
Padrón único con 2 unidades / A metros de Av. Millán – Museo Blanes / Próximo a Luis A de Herrera
SUPERFICIES
Terreno: 500 / Cubierto: 200m2 
DESCRIPCIÓN
Padrón Único con dos unidades habitacionales. Total edificado: 201m2
Vivienda 1: 118 m2 (PB +PA)
Estar, dos dormitorios, cocina comedor, baño y dos habitaciones en planta alta.
Vivienda 2: 64 m2
Estar, dos dormitorios, cocina y baño. 
Al fondo del predio existe una edificación liviana (19m2) de características modestas. 
IMPUESTOS
Contribución Inmobiliaria Anual: $ 10.000
Impuesto de Primaria Anual: $ 3.300
Tributo Domiciliario Bimensual: $ 1.000
COMERCIALIZA
Inmobiliaria Ricardo Gorga
Arancel Inmobiliario: 3% + iva
Referencia del inmueble: 60482
ID
Category
Type
Area
Built Area
Terrain
Rooms
1118120
Home
Sale
500
200
500
6
Bathrooms
Bedrooms
Garage
Construction Year
Code
Updated
2
5
2
1960
UDDE44
2025-05-18
Location
Montevideo
Address
Prado, Pierre Fossey 3900
Garage
Invite other real estate agents and earn 10% commission for every promotion they make.
Code sent to
Select Promotion Option:
Cargando formulario de pago...
 
												239 propiedades
Para verificar la propiedad de este inmueble, debe hacerlo desde la página de la agencia.
© Real Estate Evolution, 2023-2025