Centro, Canelones Y Río Negro

U$S 133,306

$ ~5,320,000 / U$S 2,259/m2

Bathrooms

1

Area

59

Category

Shop

more than

4 months ago

Views

441

Local En Alquiler Con Vidriera A La Calle. Planta Libre! Baño Y Área De Cocina.

Venta de Local en Centro, Montevideo

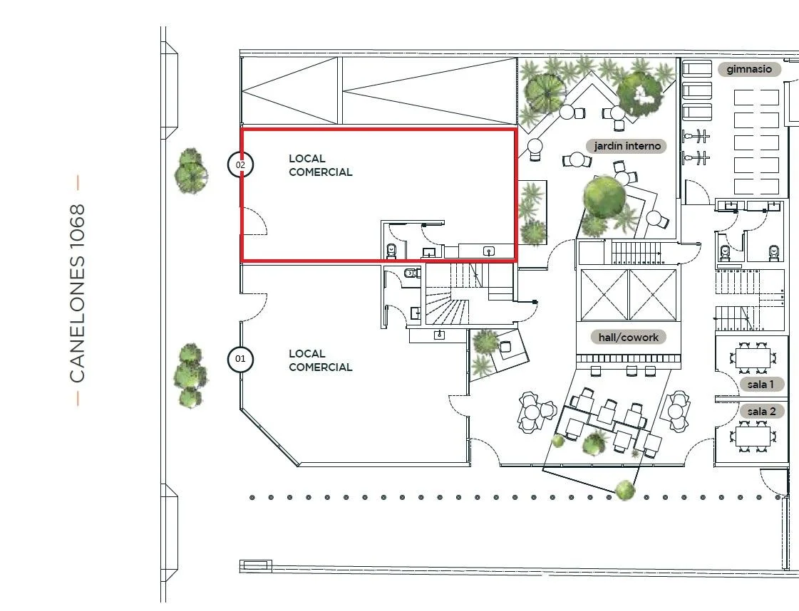
Edificio 01 SYNC - A estrenar! Ubicado en la calle Canelones entre Río Negro y Paraguay.

El local se encuentra en la planta baja del edificio junto con otro local comercial.  
Planta libre de 59m2, esto permite organizar el espacio de diversas maneras de acuerdo al rubro. 
Medidas del local: ancho 5.40m x largo 11,14m.-

El frente da a la calle Canelones y el contra frente se comunica con un patio de uso común del edificio. Tanto al frente como al fondo, tenemos grandes ventanales que permiten el ingreso de luz y ventilación natural. El local tiene acceso también por el interior del edificio. 

Área de cocina y Baño.

Amenities del edificio: Rooftop con excelentes vistas a la Ciudad en la Torre Norte y a la Rambla y el mar en la Torre Sur. Solárium, Gym, Wet spa, 4 Parrilleros semicubiertos. Espacio de coliving: Amplio salón de usos múltiples con baño y kitchenette, con kit de control de iluminación de los espacios, audio y video ideal para reuniones o eventos. Lavadero de uso común y Área de Tender.

Nota: La propiedad se encuentra con renta de $34.000, ideal para inversores. GARANTÍA PORTO SEGURO, PLAZO: 2 AÑOS CON OPCIÓN A 3 FIRMADO EL DÍA 01/09/25. RUBRO TINTORERÍA DE CALZADO. 

Gastos de ocupación 4.75%
Comisión inmobiliaria: 3%+ IVA.- 








ALO7117933 - Abate Propiedades - Gestionamos tu garantía de alquiler. Somos corredores de seguros de SURA - PORTO - SANCOR - ZURICH SANTANDER - MAPFRE
.

Property details

ID

Category

Type

Area

Built Area

1251483

Shop

Sale

59

59

Rooms

Bathrooms

Code

Updated

1

1

E7D04F

2025-09-19

Location

133.3к U$S

Location

Montevideo

Address

Centro, Canelones Y Río Negro

Additional Actions

Abate
27070700
097353950
Similar object
Loading...
Earn money by referring colleagues!

Invite other real estate agents and earn 10% commission for every promotion they make.