U$S 401,900

U$S 3,864/m2

Bedrooms

2

Bathrooms

2

Area

104

Category

Home

more than

2 months ago

Views

279

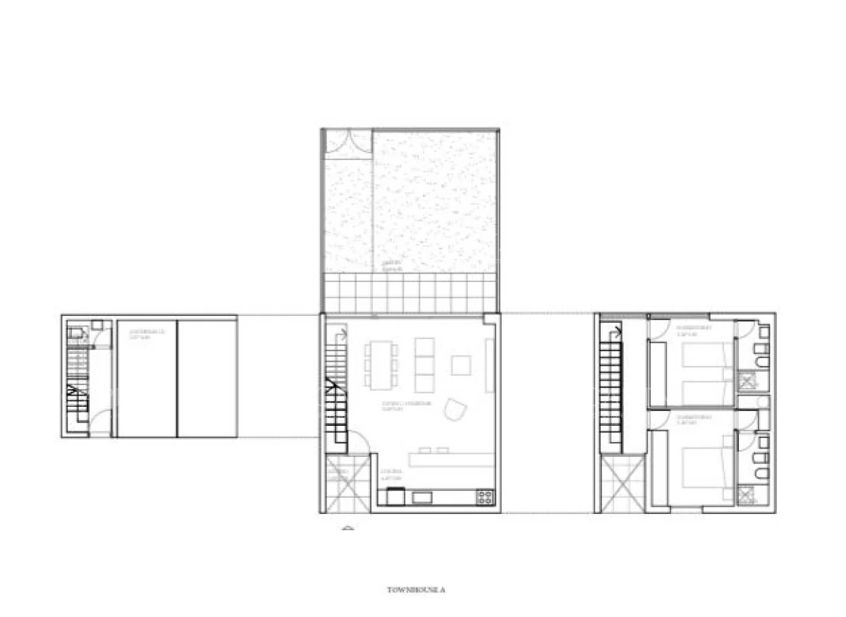
Casa Ph 2 Dormitorios Carrasco Norte

El proyecto

Nuestro proyecto se compone de dos edificios independientes que trabajan en perfecta armonía para dar forma a un entorno residencial único. Uno de estos edificios cuenta con dos plantas y presenta una escala baja hacia la calle, manteniendo la estética característica de las casas suburbanas que rodean la zona. El segundo edificio, de tres plantas, se encuentra en la parte posterior del terreno, logrando una mayor densidad en el desarrollo y proporcionando muy linda vista en todas las unidades y grandes terrazas en los penthouses.

Esta diferenciación en la arquitectura permite una relación intensa con la vegetación en la planta baja, con unidades de doble orientación que disfrutan de amplios jardines, ventilación cruzada y una exposición solar óptima. Además, en el nivel subterráneo, la planta de estacionamiento e instalaciones conecta de manera eficiente todo el desarrollo, brindando acceso compartido a las unidades de apartamentos y acceso directo y exclusivo a las unidades Town houses.



Ubicación

Fusione se encuentra en el barrio Carrasco, en una ubicación privilegiada que ofrece a los residentes la oportunidad de disfrutar del encanto de vivir en un entorno residencial, rodeado de abundante vegetación y calles arboladas. El proyecto se integra perfectamente en el ambiente apacible de Carrasco. Además, su ubicación estratégica asegura una proximidad conveniente a una serie de instituciones educativas de prestigio y a Portones Shopping.



Características

Las unidades de Fusione ofrecen amplios y fluidos espacios que se extienden hacia el exterior mediante terrazas y jardines privados, brindando a los residentes un contacto directo con la naturaleza.

El proyecto se destaca por la elección de materiales de calidad y diseño, ofreciendo como resultado ambientes elegantes pero también muy acogedores.
Referencia Interna : Tera-38943

Property details

ID

Category

Type

Area

Built Area

Terrain

1293413

Home

Sale

104

104

1532

Rooms

Bathrooms

Bedrooms

Code

Updated

3

2

2

VA86B9

2025-11-06

Location

401.9к U$S

Location

Montevideo

Address

Carrasco Norte

Additional Actions

Capital Real Estate
095001123
Similar object
Loading...
Earn money by referring colleagues!

Invite other real estate agents and earn 10% commission for every promotion they make.