U$S 859,000

$ ~34,900,000 / + $ 40,000 common expenses / U$S 3,535/m2

Bedrooms

4

Bathrooms

3

Area

243

Construction Year

2026

Category

Home

more than

1 month ago

Views

129

Casa De 4 Dormitorios Frente Al Lago





VILLAS CARRASCO BOATING



Exclusividad, diseño y vida frente al lago

Ubicadas dentro del prestigioso complejo Carrasco Boating, estas villas representan el equilibrio perfecto entre arquitectura contemporánea, privacidad y entorno natural.



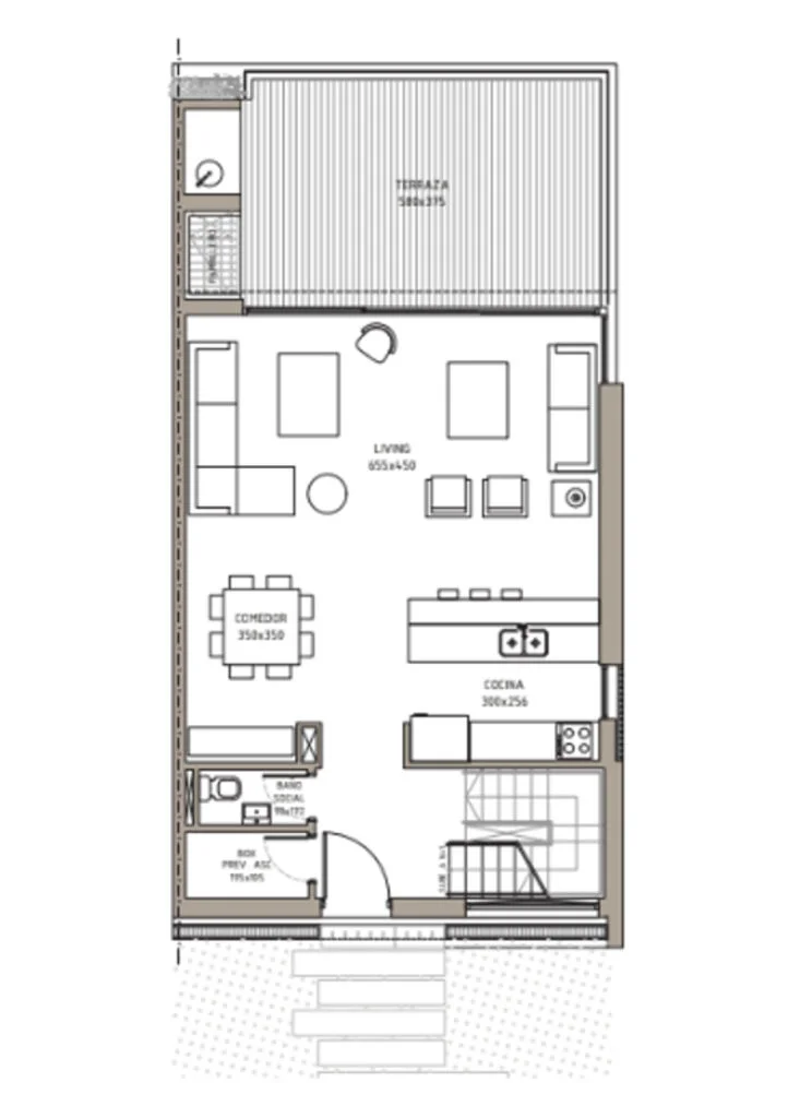
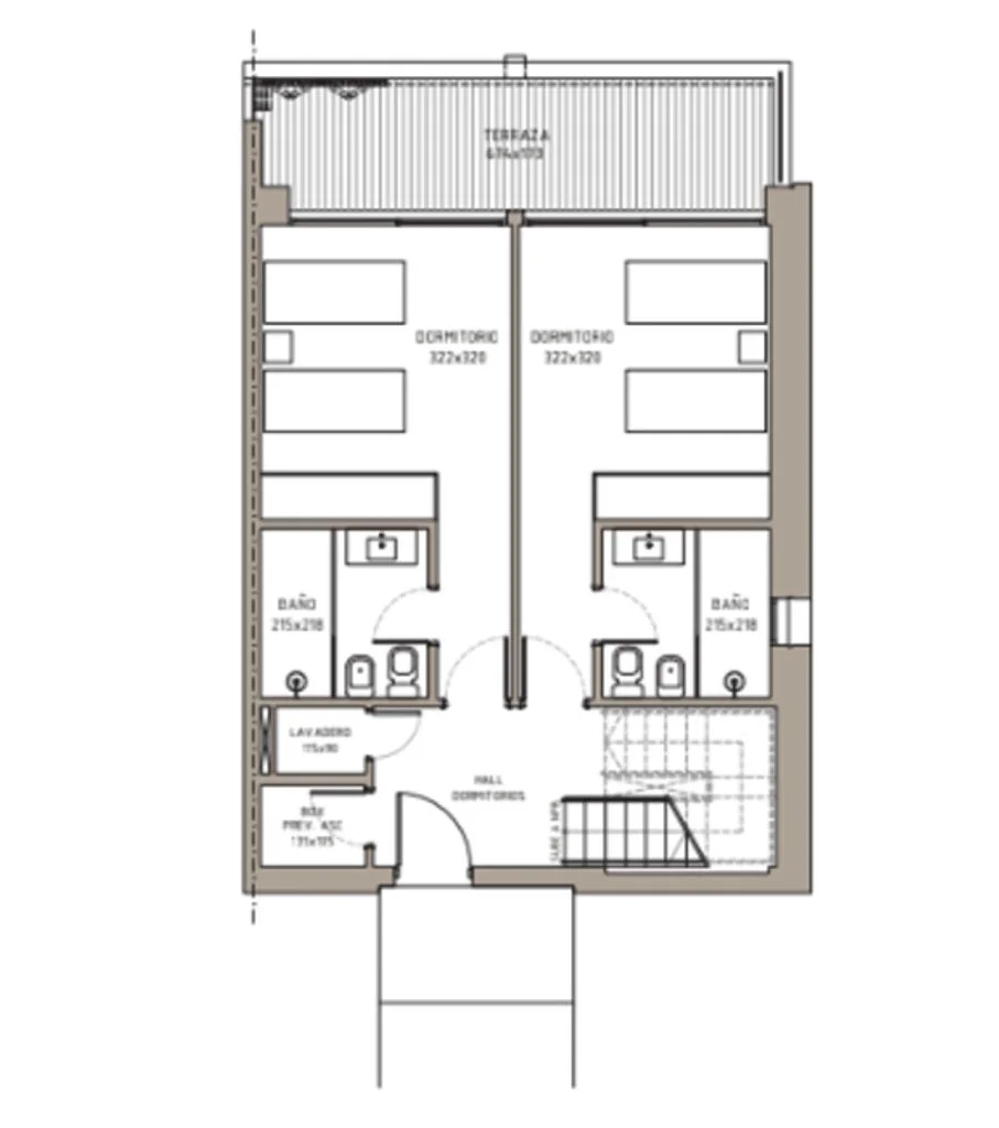
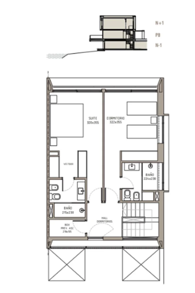
Se trata de una casa desarrollada en 3 niveles, diseñada para maximizar las vistas y la luminosidad, con orientación noroeste, ideal para disfrutar del sol y las puestas sobre el lago.



Características principales:



4 dormitorios en suite

5 baños

Cocina integrada de diseño moderno

Amplio living comedor con vista abierta al lago

Aire acondicionado en todos los ambientes

Previsión para instalación de ascensor

Garage exclusivo

Sin muebles



Nota: Las cocinas se entregarán equipadas con anafe, horno de empotrar y

campana.



Los espacios fueron concebidos con grandes ventanales, líneas modernas y materiales de excelente calidad, priorizando confort, amplitud y conexión visual con el agua.



Amenities de lujo:



Piscina interior y exterior climatizada

Solárium

Barbacoas totalmente equipadas

Salón de eventos

Gimnasio de última generación

Saunas y vestuarios

Circuito aeróbico y acceso al lago

Seguridad perimetral y vigilancia 24 horas

Vivir en Carrasco Boating es elegir un estilo de vida único, donde naturaleza, diseño y seguridad conviven en perfecta armonía.

Una oportunidad exclusiva para quienes buscan una propiedad diferencial en una de las zonas más privilegiadas de Montevideo.



Consultanos para recibir más información y coordinar una visita personalizada.



Honorarios inmobiliarios: 3% + IVA

Property details

ID

Category

Type

Area

Built Area

Terrain

Rooms

1448460

Home

Sale

243

171

242972

5

Bathrooms

Bedrooms

Construction Year

Common expenses

Code

Updated

3

4

2026

$40000

R73DC1

2026-03-24

Location

859к U$S

Location

Montevideo

Address

Carrasco

Amenities

Barbecue Area

Swimming Pool

Heating

Garden

Additional Actions

Living
094315335
Similar object
Loading...
Earn money by referring colleagues!

Invite other real estate agents and earn 10% commission for every promotion they make.