La Blanqueada, Blvr. Batlle Y Ordoñez Y Justo Maeso

U$S 163,103

U$S 2,065/m2

Bedrooms

2

Bathrooms

1

Area

79

Category

Apartment

more than

2 months ago

Views

91

Apartamentos De 2 Dormitorios A Estrenar En La Blanqueada

Apartamento 2 dormitorios al frente con terraza a estrenar 
Edificio Site Propios - Entrega Noviembre 2025

Al ingresar al apartamento nos encontramos con un pasillo de distribución. A la derecha encontramos los dos dormitorios a contrafrente, al frente el baño y la cocina semi-integrada al living comedor que conecta con una cómoda y disfrutable terraza al frente.

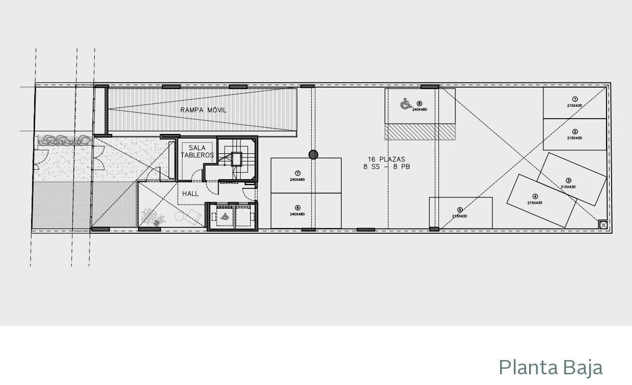
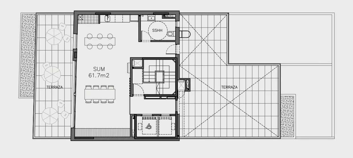
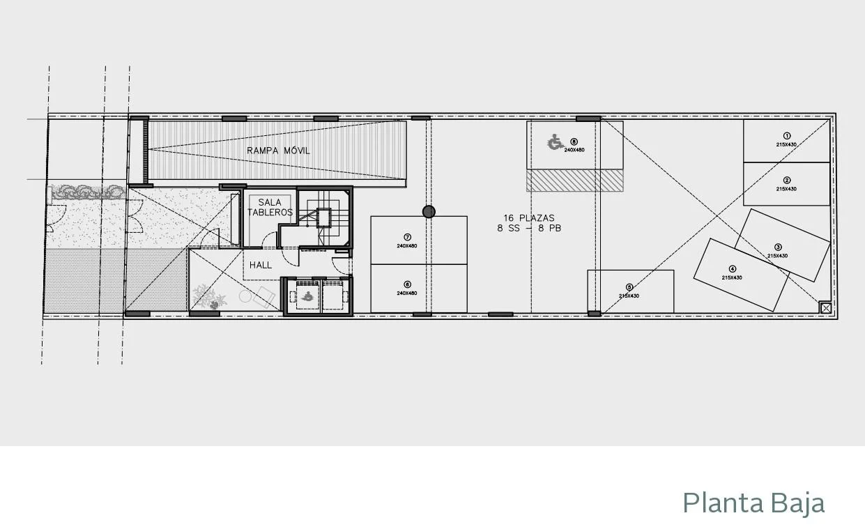
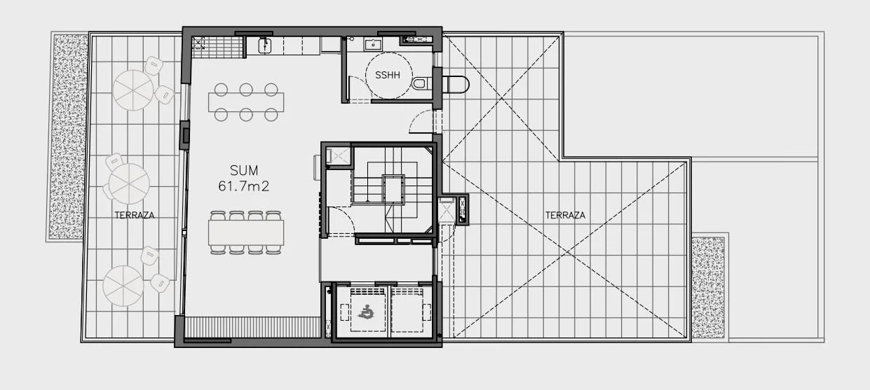
SITE PROPIOS es un proyecto de 32 unidades distribuidas en 13 niveles, siendo 21 apartamentos de 1 dormitorio y 11 apartamentos de 2 dormitorios. Cuenta con 16 cocheras distribuidas en subsuelo y planta baja. El edificio cuenta con orientación Este-Oeste, está realizado en construcción tradicional con terminaciones de calidad: hormigón visto, aluminionatural y cristal. Cuenta con amenities como SUM cerrado con parrillero y dos amplias terrazas con distinta orientación. Tiene Iluminación y ventilación natural, máximo asoleamiento
y vistas despejadas. La Planta baja es amplia, con hall de acceso sobre Blvr. José Batlle y Ordóñez, y todas las unidades cuentan con terrazas o patios exclusivos.

SITE PROPIOS se emplaza sobre Bvar. José Batlle y Ordóñez a pocos metros de Avenida Italia, en un área urbana en constante crecimiento, excelente conexión y transporte. Es una zona residencial con muchos servicios e infraestructura, centros de salud y educativos, y áreas verdes de esparcimiento.
Se encuentra a 1-3 cuadras de Estaciones de Servicio, Restós y Jardines de Infantes. A 4-6 cuadras de Supermercado Disco , CASMU Sanatorio, Hospital Evangélico, SMI Sanatorio y Club Deportivo Enfoque. Y a 7 cuadras de Hospital de Clínicas, Escuelas, Hospital Pasteur, Parque Batlle, Estadio Centenario, Gran Parque Central y Blvr. Batlle y Ordóñez.

BENEFICIOS FISCALES:
Este proyecto está incluido en la ley de beneficios tributarios para vivienda promovida según Ley 18.795.

Beneficios para el comprador final:
- Exento de IVA en el Precio de Compra
- Exoneración de IRPF/IRAE durante 10 años
- Exoneración de Impuesto al Patrimonio durante 10 años
- Exoneración de ITP aplicable en la 1er compra

Las unidades cuentan con aberturas de aluminio natural. cuenta con cortinas de enrollar en todos los espacios, puertas de madera con terminación en lámina de PVC blanca. Armarios completos en dormitorios y armario para lavarropas y calefón. Cocina integrada con muebles bajo mesadas y aéreos. Mesada en granito o similar y pileta en acero inoxidable. Revestimientos de porcelanato en baño y cocina. Piso de tablas de vinílico simil madera y zócalo blanco en interiores. Previsión de eléctrica y desagüe para aire acondicionado. Las terrazas dan a la fachada principal. Los amenities se encuentran en la azotea y están conformados por un parrillero cerrado común equipado con mobiliario y servicios, y dos amplias terrazas con excelentes vistas a la ciudad.

Servicios e instalaciones del edificio:
- Portero eléctrico con cámara visor color.
- Iluminación LED en espacios comunes.
- Sensores de movimiento en palieres.
- Pisos de porcelanato en áreas comunes.
- Ascensores con puertas automáticas.
- Cabina con zócalos, pasamanos, cielorraso
en acero inoxidable y espejo.

ABU67707 AP7503776 - Abate Propiedades - Gestionamos tu garantía de alquiler. Somos corredores de seguros de SURA - PORTO - SANCOR - ZURICH SANTANDER - MAPFRE
.

Property details

ID

Category

Type

Area

Built Area

1300500

Apartment

Sale

79

64

Rooms

Bathrooms

Bedrooms

Code

Updated

3

1

2

H7C3E0

2025-11-07

Location

163.1к U$S

Location

Montevideo

Address

La Blanqueada, Blvr. Batlle Y Ordoñez Y Justo Maeso

Additional Actions

Abate
27070700
097353950
Similar object
Loading...
Earn money by referring colleagues!

Invite other real estate agents and earn 10% commission for every promotion they make.