Carrasco Norte, Av. Saldún De Rodríguez

U$S 184,900

U$S 2,465/m2

Bedrooms

1

Bathrooms

1

Area

75

Construction Year

2026

Category

Apartment

more than

2 months ago

Views

260

Apartamento De Un Dormitorio Con Terraza En Venta En Carrasco Norte

Apartamento de un dormitorio en venta en Carrasco, Montevideo

Edificio ubicado sobre Av. Saldún Rodriguez, a pocos metros de Portones Shopping.
La unidad se encuentra en el segundo piso al frente y cuenta con 51 m² de área interna.
Dispone de un cómodo living comedor con acceso a una terraza al frente con parrillero, pileta y lavadero independiente.
La cocina es definida, con muebles aéreos y bajo mesada. (Existe la posibilidad de integrarla, consulte.)
El dormitorio también es al frente y cuenta con vestidor. El apartamento dispone de un baño completo.
Cuenta con losa radiante eléctrica independiente por habitación y preinstalación para aire acondicionado.
El apartamento incluye un box de 2 m² en el mismo piso.

La misma tipología se encuentra disponible en el tercer piso. ¡Consulte!

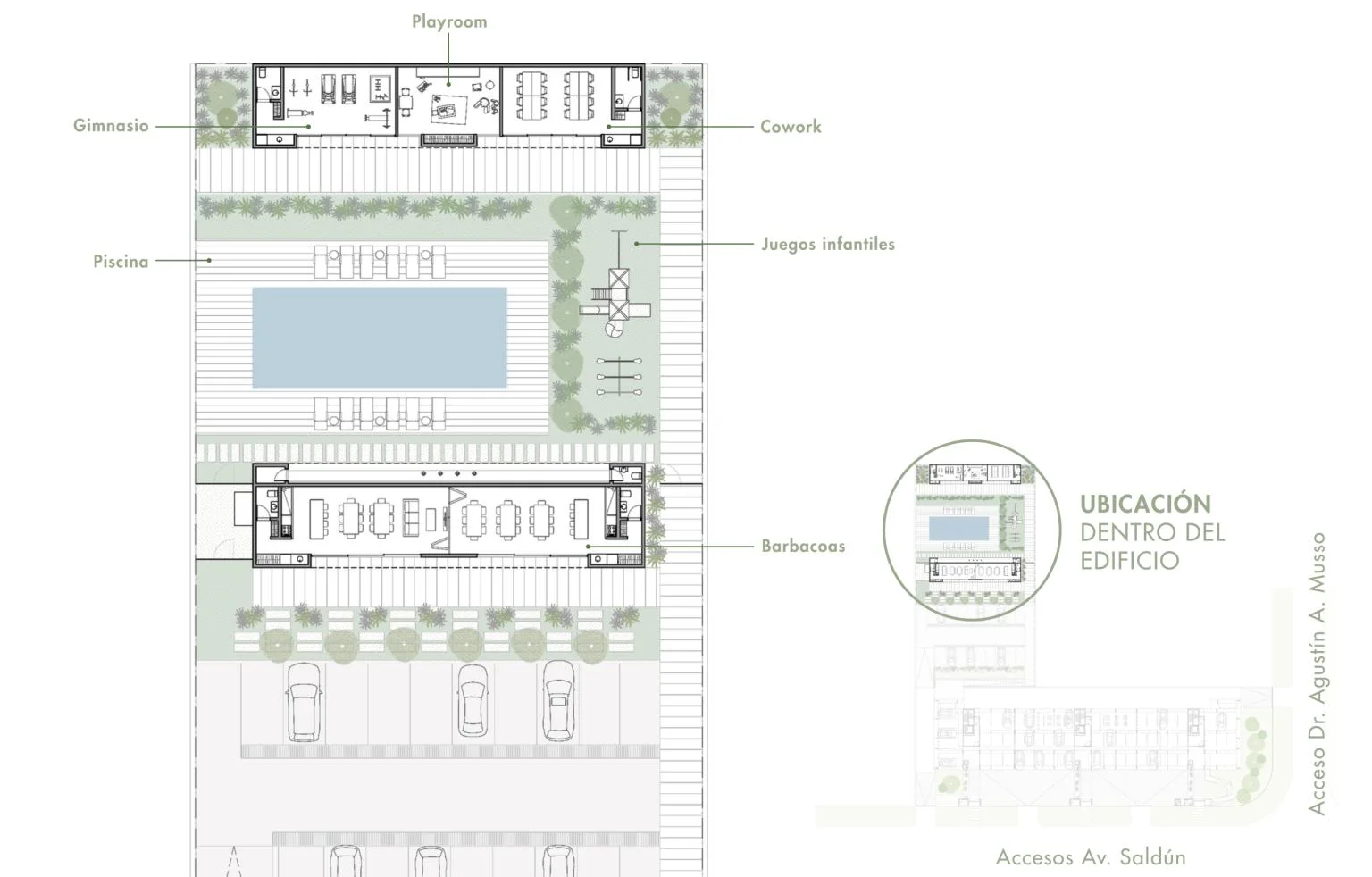
El edificio contará con variados amenities: piscina, solárium, co-work, dos barbacoas y más.

- Garajes simples disponibles desde U$S21.000, y dobles por U$S32.000.
- Gastos de ocupación: 4,5%

Comisión inmobiliaria: 3% más IVA.
Siri Propiedades - Código Referencia: SBU63151 AP7510870

Property details

ID

Category

Type

Area

Built Area

Rooms

1321496

Apartment

Sale

75

51

2

Bathrooms

Bedrooms

Construction Year

Code

Updated

1

1

2026

P6F38B

2025-11-12

Location

184.9к U$S

Location

Montevideo

Address

Carrasco Norte, Av. Saldún De Rodríguez

Amenities

Individual Heating

Barbecue Area

Terrace

Dressing Room

Elevator

Gym

Playroom

Cable TV Installation

Laundry

Sauna

Living-Dining Room

Pets Allowed

Additional Actions

Siri Propiedades.
096614967
Similar object
Loading...
Earn money by referring colleagues!

Invite other real estate agents and earn 10% commission for every promotion they make.