Centro, Centro-montevideo

U$S 148,000

U$S 2,960/m2

Bedrooms

1

Bathrooms

1

Area

50

Construction Year

2023

Category

Apartment

more than

2 months ago

Views

353

Apartamento De 1 Dormitorio Con Renta , Zona Centro. Oportunidad Inversores

Apartamento en Centro - Montevideo



Ubicado en el barrio Centro, en el límite con Ciudad Vieja, el Proyecto Andes City se emplaza a una cuadra de la avenida principal de montevideo: 18 de julio, muy cerca de la plaza independencia y a solo pasos del teatro solís, el Auditorio Nacional Sodre y la Sala Verdi, entre otros tantos centros culturales y museos. Andes City se encuentra en pleno barrio de las artes, zona caracterizada por su gran crecimiento inmobiliario en los últimos años. Muy cercano a puntos estratégicos y emblemáticos de la ciudad, a 300 metros del mar y de la rambla, el nuevo edificio Andes City estará emplazado en el centro comercial, financiero y turístico de la ciudad, ofreciendo un lugar para vivir, trabajar y disfrutar.



Andes City es un proyecto a construirse sobre un parking pre-existente.

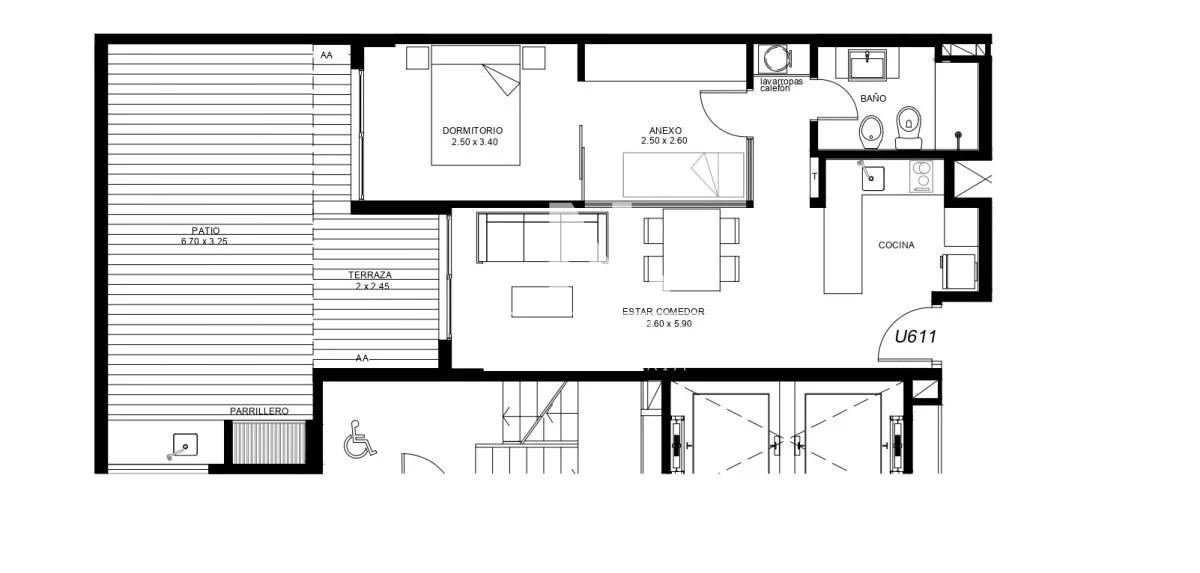
A los 5 pisos del estacionamiento se suman otros 5 pisos de viviendas (monoambientes y 1 dormitorio y medio) que van desde los 37m2 a los 89m2. . Algunas unidades poseen terraza propia y parrilleros individuales.

Además de las viviendas, se podrán adquirir garages en el mismo edificioEl edificio cuenta con una variada gama de amenities: -gimansio -cowork -parrillero exterior -solarium con jacuzzi. Ttodos los amenities estarán ubicados en el contrafrente del 6o y 7o piso.



Opcional compra de garaje.



Departamento de 1 dormitorio, 1 baño, living-comedor con cocina americana.

Terraza con parrillero.



Invierta con financiación.
Referencia Interna : Tera-8638

Property details

ID

Category

Type

Area

Built Area

Terrace

1273939

Apartment

Sale

50

89

312

Rooms

Bathrooms

Bedrooms

Construction Year

Code

Updated

2

1

1

2023

RD8B35

2025-10-09

Amenities

Barbecue Area

Terrace

Gym

Additional Actions

Inmobiliaria Nicolás De Módena
+598 92 415 537
Similar object
Loading...
Earn money by referring colleagues!

Invite other real estate agents and earn 10% commission for every promotion they make.