Buceo, *luis Alberto De Herrera

U$S 390,000

$ ~15,600,000 / + $ 27,500 common expenses / U$S 4,333/m2

Bathrooms

2

Area

90

Construction Year

2018

Category

Office

more than

4 months ago

Views

543

Alquiler O Venta - Oficina Pocitos Nuevo - A Metros Wtc -

Workplace Real Estate ofrece:

OFICINA EN ALQUILER EN EDIFICIO DE CATEGORÍA, MUY MODERNO, A PASOS DE WORLD TRADE CENTER.
EDIFICIO DE DISEÑO SOBRE L.A. DE HERRERA. OFICINA PARA ENTRAR. ESPECTACULAR.
LA OFICINA:
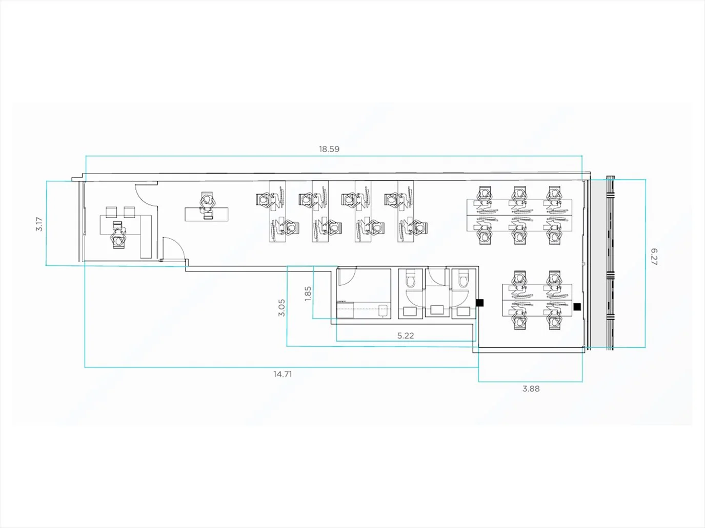
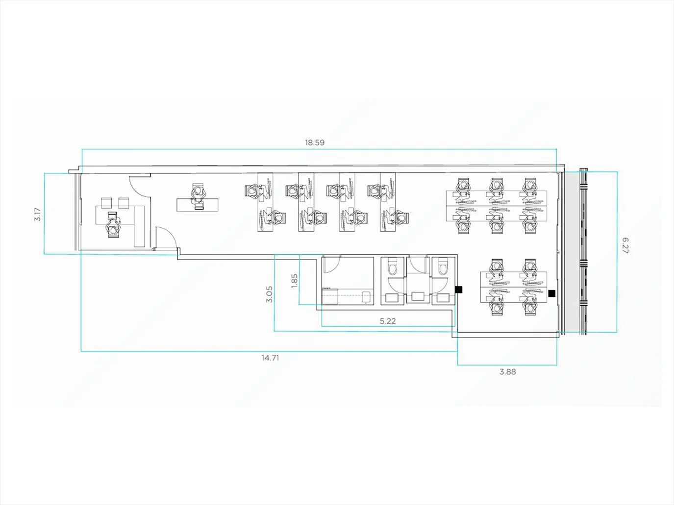
- 90 metros cuadrados propios.
- Al Frente

- Sala de reuniones o despacho
- Espacio de Open Office
- Sala de Reuniones grande u open office hacia 26 de Marzo
- 2 Baños
- Kitchenette

Además:
- Piso técnico con alfombra
- Equipos de Aire Acondicionado instalados.
- Luminarias

ATENCION: 1 COCHERA INCLUIDA EN EL PRECIO

EL EDIFICIO:
- A 30 metros de World Trade Center
- Lobby con control de acceso
- Monitoreo de seguridad
- Servicio de recepción con central telefónica (de luneas a viernes de 8:00 a 18:00)
- Sala de Reuniones de uso común
- Baño de uso común en PB
- Terraza con parrilleros de uso común
- Fachada Doble virio Hermético –DVH-. 100% vidriada

GASTOS COMUNES:. A rendición de cuentas. Pueden variar mes a mes.

--
CONSULTE: En WORKPLACE REAL ESTATE somos especialistas en inmuebles corporativos.

* La información contenida en el presente documento ha sido proporcionada íntegramente por el/los propietarios del inmueble. WRE no garantizar la exactitud o exhaustividad de la información aquí recogida, ni se responsabiliza por las diferencias o modificaciones que puedan surgir a partir de esta publicación.
* Honorarios por intermediación: 3% + IVA para operaciones de
(CW240454)

Property details

ID

Category

Type

Area

Built Area

Terrain

1245618

Office

Sale

90

90

902

Rooms

Bathrooms

Construction Year

Common expenses

Code

Updated

4

2

2018

$27500

E81F5E

2025-10-11

Location

390к U$S

Location

Montevideo

Address

Buceo, *luis Alberto De Herrera

Amenities

Garage

Barbecue Area

Bedroom Closet

Barbecue

Air Conditioning

Heating

Additional Actions

Workplace Real Estate
+59897501030
Similar object
Loading...
Earn money by referring colleagues!

Invite other real estate agents and earn 10% commission for every promotion they make.