Colinas de Solymar, Camino De Los Horneros 0

U$S 585,000

$ ~23,800,000 / U$S 2,208/m2

Bedrooms

4

Bathrooms

3

Garage

2

Area

265

Construction Year

2025

Category

Home

more than

2 weeks ago

Views

81

Venta De Casa De 3 Dormitorios- Cavas De La Tahona

Corredor Responsable: -
Contacto: Ignacio Iccardi
Casa a estrenar en Cavas de la Tahona

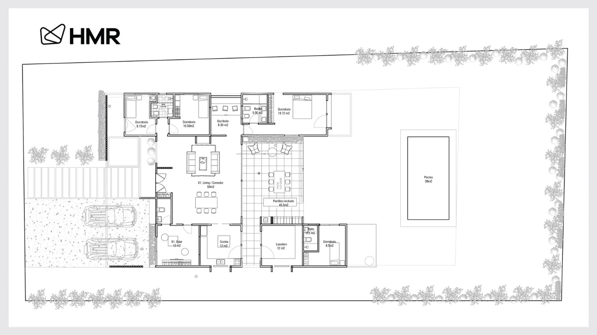
Moderna casa de 1 planta desarrollada por HMR, empresa con más de 20 años de experiencia. Ubicada en la primera etapa del barrio, con excelente orientación noreste y vistas únicas hacia Campo de la Tahona y la zona ecuestre.

Superficie total 265 m² (170 m² interiores + 95 m² exteriores). Construcción en Steel Framing, aberturas PVC DVH, previsión de aire acondicionado en todos los ambientes, estufa de alto rendimiento, cochera techada para 2 autos y lavadero independiente.

La casa ofrece un amplio living-comedor con grandes ventanales, salida al jardín, pérgola con parrillero y espacio previsto para piscina. Cocina con isla central, estar definido y toilette.
Área íntima con suite principal, dos dormitorios secundarios y baño completo. Además, dormitorio de servicio con baño.

El comprador puede elegir terminaciones según avance de obra.
No incluye piscina, equipos de aire acondicionado ni placares (opcionales).

Cavas de la Tahona ofrece seguridad 24 hs, transporte privado, naturaleza, vistas increíbles y futuros amenities: club house, piscina, gimnasio, canchas de tenis y pádel, cowork y más.
Cada Oficina es de propiedad, gestión y desarrollo independiente
La presente publicación describe las características esenciales del inmueble, debiéndose consultar al responsable de la operación por la eventual actualización de las medidas, descripciones arquitectónicas y funcionales, servicios, impuestos, precios y demás información, cuyos valores son aproximados.

Property details

ID

Category

Type

Area

Built Area

Terrain

Rooms

1466765

Home

Sale

265

170

2652

5

Bathrooms

Bedrooms

Garage

Construction Year

Code

Updated

3

4

2

2025

X92967

2026-03-29

Location

585к U$S

Location

Canelones

Address

Colinas de Solymar, Camino De Los Horneros 0

Amenities

Swimming Pool

Additional Actions

RE/MAX
59895148431
Similar object
Loading...
Earn money by referring colleagues!

Invite other real estate agents and earn 10% commission for every promotion they make.