Solymar, Jorge Lazaroff 0

U$S 247,500

$ ~9,540,000 / U$S 1,919/m2

Bedrooms

3

Bathrooms

2

Garage

2

Area

129

Construction Year

2025

Category

Home

more than

3 months ago

Views

466

Venta Casa Tres Dormitorios Solymar

Corredor Responsable: -
Contacto: Rafael Martinez
001
Casa de 3 dormitorios en un entorno tranquilo, Solymar SUR

Conjunto de 4 viviendas en construcción tradicional, con orientación este, ubicadas a solo 30 metros de Márquez Castro y a 5 minutos a pie de la playa. Excelente conectividad con amplia locomoción en la zona.

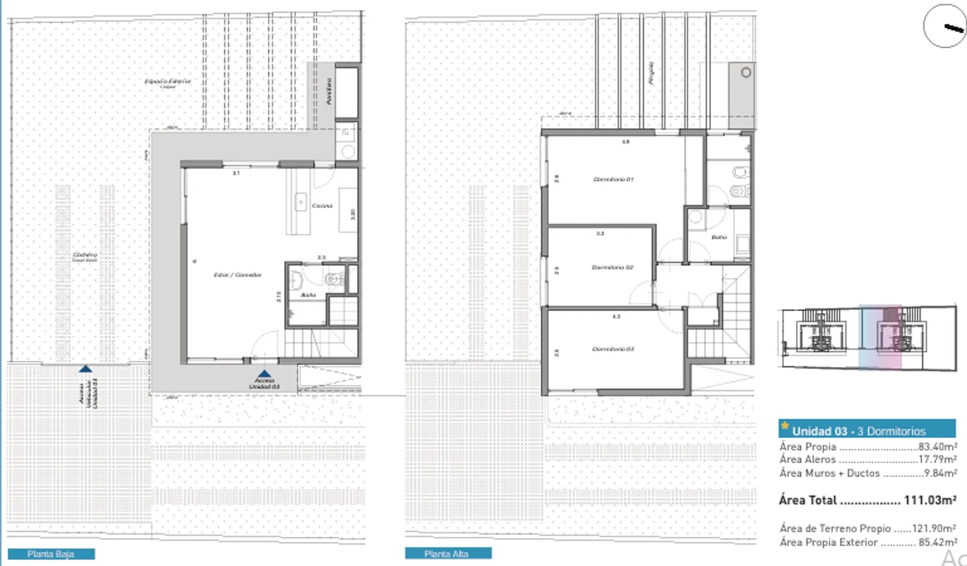
Distribución:

Planta baja:
• Living-comedor con cocina integrada.
• Mesada desayunador en paralelo con piso de cerámica rectificada.
• Mueble bajo mesada y aéreo en melamínico (15 y 18 mm).
• Previsión para lavavajillas y lavarropas.
• Baño completo.
• Jardín de 75 m² con parrillero y pérgola.
• Estacionamiento para dos autos.



Planta alta:
• Tres dormitorios, con piso flotante símil madera (8 mm austriaco o similar).
• Dormitorio principal con placard en melamínico (15 o 18 mm).
• Placard adicional para calefón y guardado.

Características adicionales:
• Previsión para aire acondicionado tipo split en estar y dormitorios.
• Previsión para TV cable y fibra óptica.
• Aberturas en aluminio serie PROBBA.
• Pórtico de acceso común techado.
• Pórtico de acceso y pavimentos exteriores en hormigón llaneado y piedra partida.
• Privacidad y seguridad: concepto in house, con muros perimetrales de 2 metros y cercos divisorios entre casas.
• Personalización: en este momento del desarrollo existe la posibilidad de elegir colores de cocina, placares, revestimientos y pintura en esta etapa del desarrollo, fecha prevista de entrega setiembre 25.

Beneficios de Vivienda Promovida:

La compra de esta propiedad cuenta con los beneficios de la Ley de Vivienda Promovida, lo que implica:
• Exoneración de ITP en la compra.
• Exoneración de IRPF en arrendamiento por 10 años.
• Exoneración del Impuesto al Patrimonio por 10 años.

Forma de pago:
• 10% de reserva.
• 30% al compromiso (aproximadamente en 60 días, incluyendo lo entregado en la reserva).
• Saldo contra ocupación (octubre/noviembre).
• Gastos de ocupación: 4%.
• Acepta financiación bancaria.

Comisión inmobiliaria: 3% + IVA. Compartimos con todos los colegas.

Cada Oficina es de propiedad, gestión y desarrollo independiente
La presente publicación describe las características esenciales del inmueble, debiéndose consultar al responsable de la operación por la eventual actualización de las medidas, descripciones arquitectónicas y funcionales, servicios, impuestos, precios y demás información, cuyos valores son aproximados.

Property details

ID

Category

Type

Area

Built Area

Terrain

Rooms

1292728

Home

Sale

129

111

1292

4

Bathrooms

Bedrooms

Garage

Construction Year

Code

Updated

2

3

2

2025

JDF95E

2025-10-26

Location

247.5к U$S

Location

Canelones

Address

Solymar, Jorge Lazaroff 0

Additional Actions

RE/MAX
099001901
Similar object
Loading...
Earn money by referring colleagues!

Invite other real estate agents and earn 10% commission for every promotion they make.