Lagomar, Av. Secco Garcia 1100

U$S 289,500

$ ~11,800,000 / U$S 1,713/m2

Bedrooms

3

Bathrooms

1

Garage

2

Area

169

Construction Year

2025

Category

Home

more than

2 weeks ago

Views

91

Venta Casa 3 Dormitorios En Lagomar Sur- 001

Corredor Responsable: -
Contacto: Rafael Martinez
UNIDAD 001 Descripción

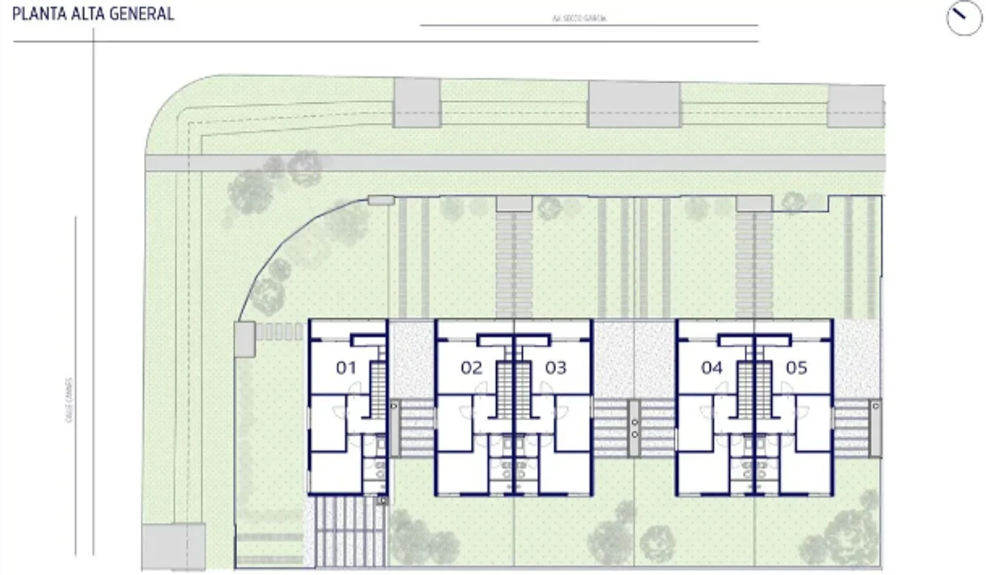
Desarrollo de dúplex

Desarrollo de 5 unidades dúplex, todas al frente, de las cuales 3 ya se encuentran vendidas.

Casa a la venta – 3 Dormitorios en Lagomar / SIN GASTOS DE OCUPACION

Independiente | Jardín Propio | Cochera Incluida

Un hogar moderno en un entorno natural

Dentro del exclusivo proyecto Mar Índigo, la Unidad 001 ofrece un equilibrio perfecto entre diseño contemporáneo, construcción de calidad y un entorno verde único en Lagomar Sur.
Su carácter esquinero, independiente y funcional la transforma en una alternativa ideal para familias que buscan calma, comodidad y contacto con la naturaleza.

Distribución

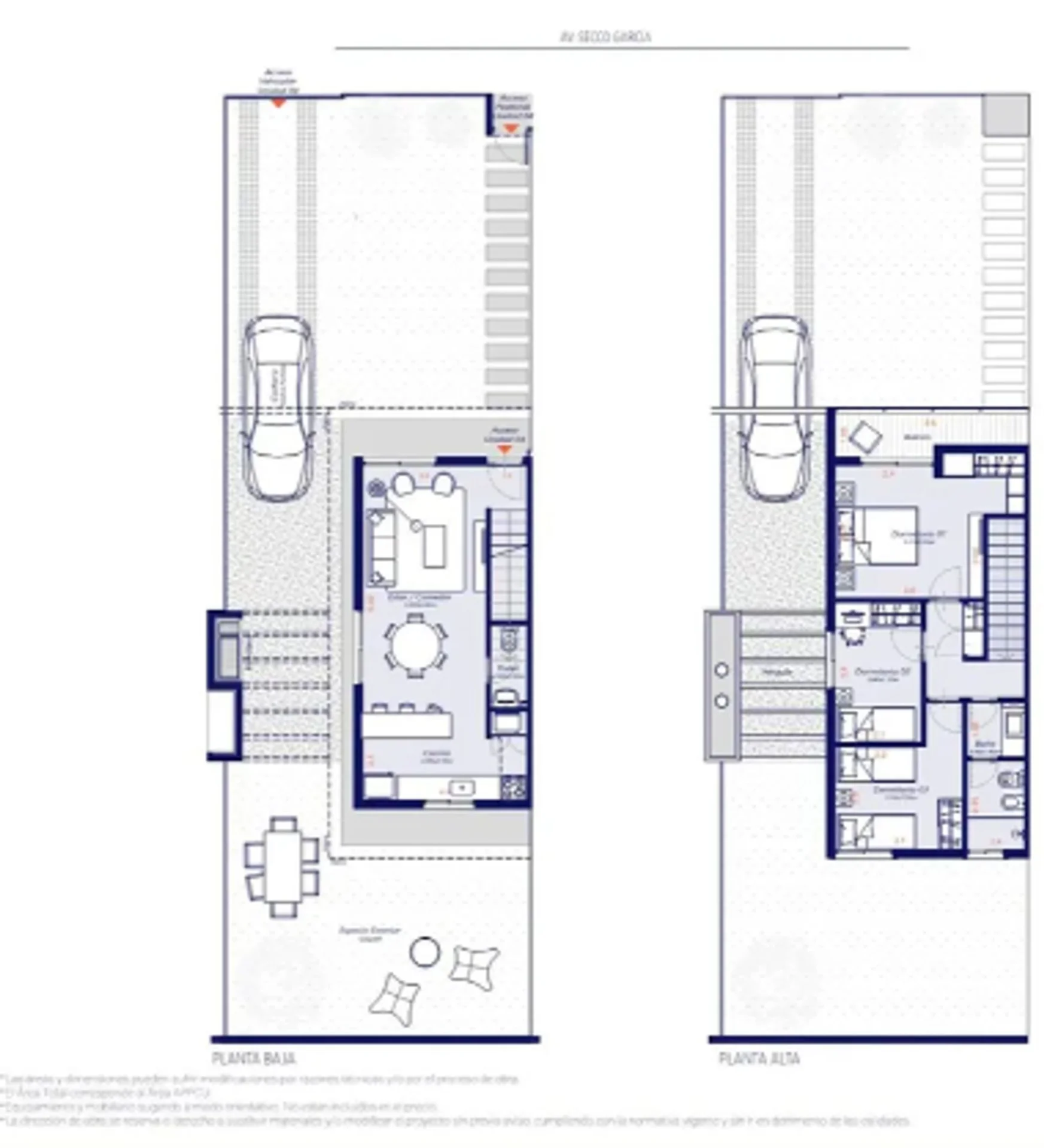
Planta Baja

Living comedor : Amplio y muy iluminado, con ventanales dobles que integran el espacio al patio, generando un ambiente abierto y acogedor.

Cocina integrada : De concepto abierto, equipada con muebles bajo mesada y alacena superior. Posee ventana sobre mesada y sector auxiliar con previsión para lavarropas.

Planta Alta

Dormitorio principal: Al frente, cómodo, con posibilidad de vestidor y acceso a terraza privada.

Dormitorio secundario: Con gran entrada de luz natural, pensado para oficina, cuarto de niños o visitas.

Tercer dormitorio: Ventilado y funcional, perfecto como estudio o dormitorio extra.

Baño completo : Con anteaño, revestimiento en porcelanato, grifería monocomando y ventilación natural.

Pasillo con placard integrado.

Exterior

Jardín exclusivo (155.11 m²): Espacio verde para disfrutar actividades al aire libre.

Pérgola con parrillero.

Estacionamiento lateral: Lugar definido para un vehículo dentro de la propiedad.

Áreas

Área cubierta: 75,87 m²

Aleros y balcones: 21,97 m²

Jardín: 155,11 m²

Área total: 109,23 m²

Ubicación

Mar Índigo se ubica en una de las zonas con mayor desarrollo de Ciudad de la Costa. A pocas cuadras de la Rambla y con acceso rápido a colegios, servicios y centros comerciales. Un barrio residencial tranquilo, ideal para quienes buscan paz sin perder cercanía con todo.

Detalles de construcción

Sistema tradicional, pisos de porcelanato, aberturas de aluminio con DVH y previsión para aire acondicionado. Ambientes diseñados para maximizar la luz natural, el confort y la eficiencia energética.

El proyecto está amparado en la Ley 18.795, lo que permite acceder a beneficios únicos:

Exoneración del ITP (Impuesto a las Transmisiones Patrimoniales).

Exoneración del Impuesto al Patrimonio por 10 años.

Exoneración del IRPF/IRAE en alquileres por 10 años.

Gastos adicionales (no incluidos en el precio)


Honorarios inmobiliarios: 3% + iva.
Compartimos con todos los colegas

Elegí Mar Índigo

La Unidad 001 ofrece diseño, funcionalidad y naturaleza en un solo lugar.
Un proyecto pensado para el bienestar y la vida en familia.
Cada Oficina es de propiedad, gestión y desarrollo independiente
La presente publicación describe las características esenciales del inmueble, debiéndose consultar al responsable de la operación por la eventual actualización de las medidas, descripciones arquitectónicas y funcionales, servicios, impuestos, precios y demás información, cuyos valores son aproximados.

Property details

ID

Category

Type

Area

Built Area

Terrain

Rooms

1466599

Home

Sale

169

76

1692

4

Bathrooms

Bedrooms

Garage

Construction Year

Code

Updated

1

3

2

2025

F1969D

2026-03-29

Location

289.5к U$S

Location

Canelones

Address

Lagomar, Av. Secco Garcia 1100

Additional Actions

RE/MAX
59895148431
Similar object
Loading...
Earn money by referring colleagues!

Invite other real estate agents and earn 10% commission for every promotion they make.