Solymar, 16 De Marzo De 1984 700

U$S 169,000

$ ~6,510,000 / U$S 1,707/m2

Bedrooms

2

Bathrooms

1

Garage

1

Area

99

Construction Year

2025

Category

Home

more than

3 months ago

Views

393

Venta Casa A Estrenar 2 Dormitorios Cochera

Corredor Responsable: -
Contacto: Valeria Cruz
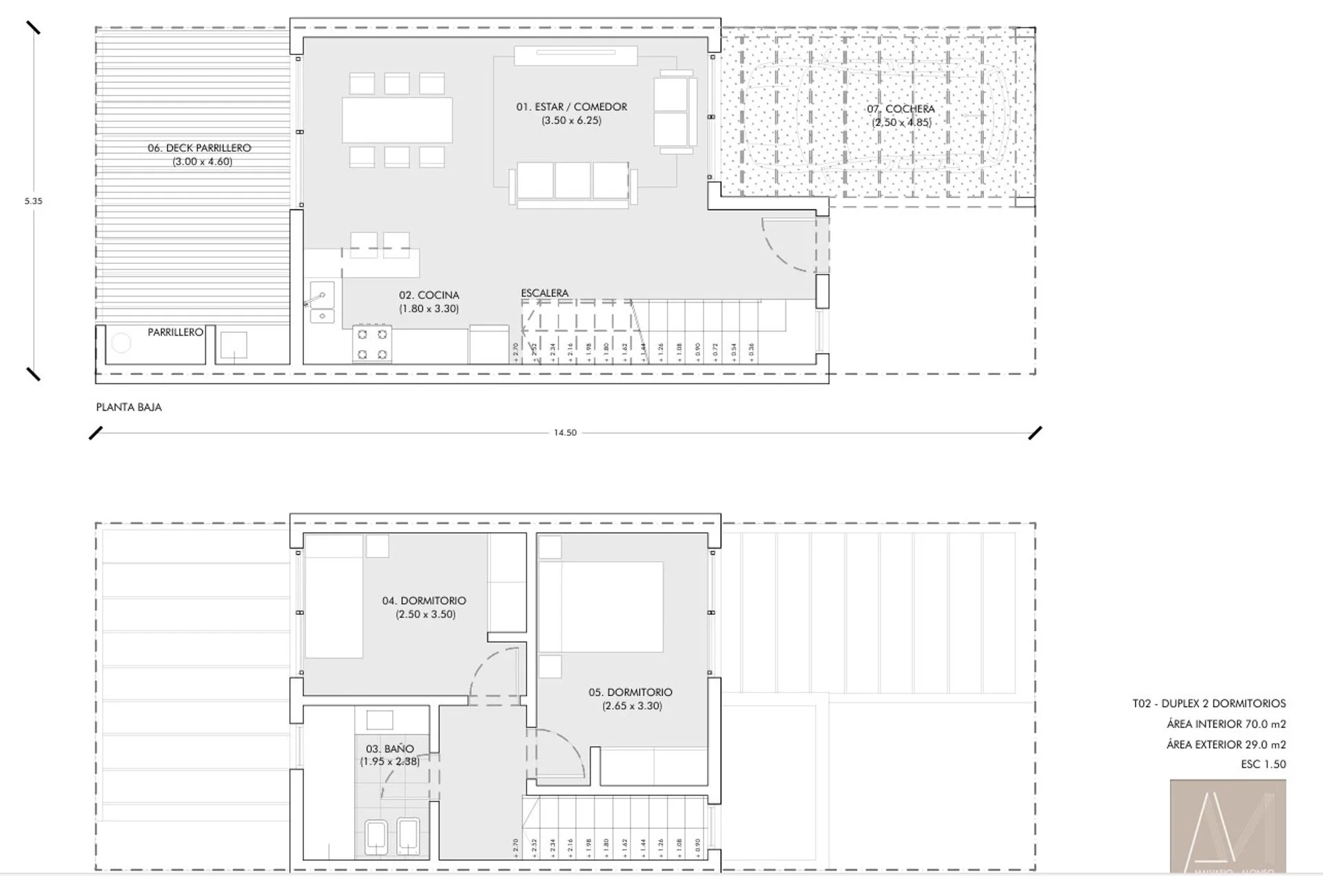
Proyecto exclusivo en Solymar (al sur de Ruta Interbalnearia), muy buena ubicación muy próximo a Car One y Almenara.
Ultima de 2 dormitorios y 1 baños y toillete (actualmente despojador con previsión sanitaria para convertir en baño desp de la final)
Patio con parrillero y cochera exclusiva.
Estrena Ya!

Excelentes terminaciones y construcción tradicional.

Acepta Financiación bancaria.

Cada unidad ofrece:
Jardín privado con deck de madera y pérgola en hierro y madera.
Parrillero integrado y cochera.
Placares.

Preinstalación para aire acondicionado y estufa a leña de alto rendimiento (opcional).

Beneficios:
Espacios verdes con área de uso común y juegos infantiles.
Cerramiento perimetral, portón eléctrico y sistema de videovigilancia.
Calles asfaltadas, saneamiento en toda la zona e iluminación pública.

Conexiones 3%



Cada Oficina es de propiedad, gestión y desarrollo independiente
La presente publicación describe las características esenciales del inmueble, debiéndose consultar al responsable de la operación por la eventual actualización de las medidas, descripciones arquitectónicas y funcionales, servicios, impuestos, precios y demás información, cuyos valores son aproximados.

Property details

ID

Category

Type

Area

Built Area

Terrain

Rooms

1293236

Home

Sale

99

70

992

3

Bathrooms

Bedrooms

Garage

Construction Year

Code

Updated

1

2

1

2025

BD4468

2025-10-25

Location

169к U$S

Location

Canelones

Address

Solymar, 16 De Marzo De 1984 700

Amenities

Barbecue Area

Additional Actions

RE/MAX
099001901
Similar object
Loading...
Earn money by referring colleagues!

Invite other real estate agents and earn 10% commission for every promotion they make.