Ciudad de la Costa, Ruta General Líber Seregni 23500

U$S 330,000

$ ~13,300,000 / U$S 2,578/m2

Bedrooms

3

Bathrooms

2

Garage

3

Area

128

Construction Year

2019

Category

Apartment

more than

1 week ago

Views

56

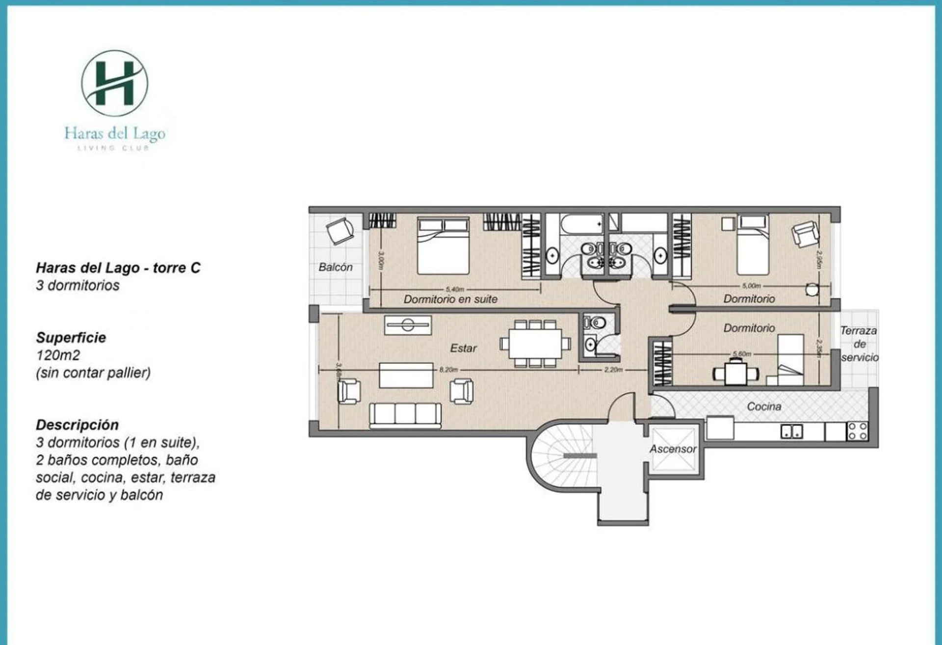
Venta Apto 3 Dormitorios Haras Del Lago Con Renta

Corredor Responsable: -
Contacto: Silvana De La Fuente
VENTA APTO EN HARAS DEL LAGO OPORTUNIDAD UNICO CON VISTA AL LAGO

Se vende muy buen apto con excelente orientación noreste, muy soleado y luminoso.

Cuenta con área social de living comedor amplio con ventanales y terraza al frente.
Pisos flotantes de madera. Baño social.
Cocina definida con terraza lavadero.

Tres dormitorios, uno en suite, y otros dos dormitorios que comparten un baño completo.
Construcción tradicional.

Calefacción por losa radiante eléctrica y aire acondicionado en todos los ambientes.

Agua caliente por caldereta a gas.
Gas por cañería en cocina.

Garaje doble más un garaje simple, por lo cual cuenta con espacio para tres autos.

El barrio cuenta con variedad de amenities:
Canchas de tennis, football, basketball y frontón
Gimnasio con aparatos
Sauna y solarium
Piscina abierta
Servicio de seguridad 24 hs
Dos barbacoas equipadas
Kids club
Fogón
Juegos para niños
Car wash
Busy hands
Jardín preescolar bilingüe

Gastos comunes $15.000.
Contribución inmobiliaria $45.000.
Impuesto a Primaria $15.000 aproximadamente.
Alquilado en julio 25 por dos años. Garantía Porto. Precio alquiler $49.000.

Compartimos con todos los colegas.
Comisión inmobiliaria 3% mas IVA.
Cada Oficina es de propiedad, gestión y desarrollo independiente
La presente publicación describe las características esenciales del inmueble, debiéndose consultar al responsable de la operación por la eventual actualización de las medidas, descripciones arquitectónicas y funcionales, servicios, impuestos, precios y demás información, cuyos valores son aproximados.

Property details

ID

Category

Type

Area

Rooms

Bathrooms

1469745

Apartment

Sale

128

4

2

Bedrooms

Garage

Construction Year

Code

Updated

3

3

2019

FAE46C

2026-04-10

Location

330к U$S

Location

Canelones

Address

Ciudad de la Costa, Ruta General Líber Seregni 23500

Amenities

Barbecue Area

Additional Actions

Silvana de la Fuente ReMax
598 95 971 612
Similar object
Loading...
Earn money by referring colleagues!

Invite other real estate agents and earn 10% commission for every promotion they make.